5 Attachment(s)
Denford Triac Z axis ball screw removal
Hi
I've posted this up on the Denford site but thought I'd put it here too :)
I've recently bought a project Triac. I knew the Z ball screw would probably need replacing but after some advice from Colin on here I have searched and found somewhere that may be able to re-ball it.
Clearly I have to take it out and that's where the challenge comes...
I've done some googling and I haven't found any info or procedure on doing this.
There doesn't look to be enough room for the screw to be removed without removing the lower bearing.
How I see it:
1 - remove pulley.
2 - remove locknut and tab from top of screw.
3 - not sure...
I don't want to hammer the lower bearing out with the screw as it may damage it.
I can't get to the rear to remove it with my blind bearing puller as there is no access.
I could maybe drive the bearing out with a long punch being careful?
I could unbolt the column of the base and get to it that way but I'd rather not disturb everything - saying that if I got the lower bearing out I would have to fit a new bearing from the bottom anyway.
It's a bit like one of those puzzles you get at Christmas.
Any thoughts would be appreciated - particularly if I am missing something obvious.
Thinking about taking the head ball nut bracket of too to go with the screw for the refurb so the pre-load is correct.
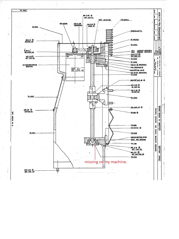
My Triac doesn't have the bearing cap as per the drawing below.
Attachment 23841
Attachment 23842
Attachment 23843
Attachment 23844
Attachment 23845
Re: Denford Triac Z axis ball screw removal
Well - after my mate came around and had a look he noticed the z axis jib strip was moving up and down. We had a look and found a lot of play where the screw head contacts the jib strip and as the Z went up and down it would jam and cause the notchy feeling when the Z screw was moved.
We put a bit of solder on it and filed it back (just temporary) and put it back in and adjusted it and now the head moved up and down very easily.
Looks like I don't need to remove the Z ball screw at all now - Phew :)
Cheers
Dave