1 Attachment(s)
	
	
		Let The Fun Begain, New build on the Table.
	
	
		Hi All,
My name is Mike and I am about to start building my very first CNC router,
I will need a lot of help with this and I hope I can count on you all to help.  I will change some of my design to what you tell me but I might reject some and go with my own ideas.
 Anyway My main Hobby is building and flying Radio Control Scale models and I hope to make some model kits of planes that I have designed along with  Retracts etc to help recoup some of the money that I will be putting into this machine.
 Now with this in mind the main thing that I will be cutting is Ply, balsa, and  aluminium for the most, But of course I will have to try house signs wooden toy and any thing else.
The rails will be Supported linear rails SBR20-300mm  SBR20-650mm SBR20-1100mm with the Bearing Blocks.
 And the  ballscrews RM1605 -  350mm - 700mm and  I will use twin ballscrews - 1150mm This I cannot change as I have them waiting for me on my bench.
Now I purchased some 6082 aluminium for the Z axis which is 20mm thick 330mm x 160mm and I was surprised at the weight 3.4kg.
 The first question of many.I was planning to use these steppermotors, Will the Nema23 Stepper Motor 3.1Nm be strong enough to work this ( the weight of aluminium four bearing and a router. ) I was going to use these straight without gearing? I have attached a drawing of the Z axis ( I hope ) to let you see what I'm thinking about.
	 
	
	
	
		Re: Let The Fun Begain, New build on the Table.
	
	
		I advise you read some of the build logs on this forum, as it is evident from the Z-axis design, some of the parts you have chosen and the question you ask, that you would do well to find out more before building this. For example, it's stronger to put the Z-axis rails on the same plate as the spindle and it would have been better to have RM1610 screws for X and Y.
20*330*160*2.7*10^-6=2.85kg, so either your scales are wrong or the dimensions of that plate are greater than specified.
3.1Nm motors will be plenty. Using timing belts and pulleys has numerous advantages, including getting better performance by changing the drive ratio, making it easier to mount the motor and helping with resonance damping. Since it seems you have bought 5mm pitch screws for X and Y, you will almost certainly need to use a 2:1 ratio (bigger pulley on motor) to make the machine run fast enough. Again, this information is nothing new - read a few build logs and you'll be able to answer the questions yourself.
	 
	
	
		1 Attachment(s)
	
	
		Re: Let The Fun Begain, New build on the Table.
	
	
		Ok my mistake it is  2.85Kg and not 3.4Kg I made the mistake when I converted from 6.283Lbs to Kg.
Right now we know I'm an idiot I have changed the design round to the rails on the same plate as the spindle, The reason I did it the other way round was there would be less weight for the stepper motor to lift, I also have a question about the gearing, If I used a 2:1 will I not lose torque but gain the speed from the stepper motor?
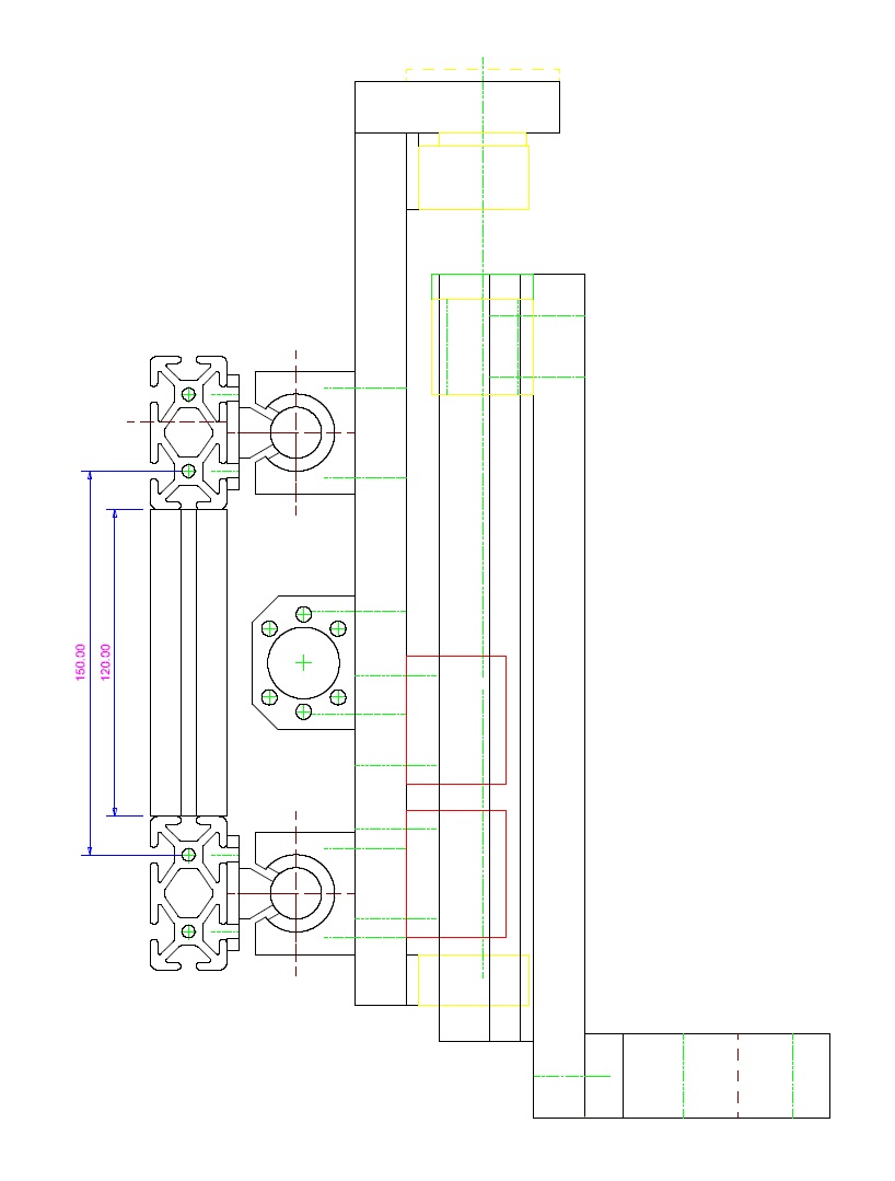
Here is my new drawing see what you think, I would have liked to put the two bearing blocks in line with the gantry blocks but i would lose a lot of travel, Anyway how high should I make the bottom of the Z mounting that holds the router from the table.                          Attachment 8737
	 
	
	
	
		Re: Let The Fun Begain, New build on the Table.
	
	
		Hi, 
As Jonathan said this is all covered in most of the previous builds. Revised plan is much better but you could gain a bit more rigidity by moving the lower block down to match the end of the rail as your z axis blocks look a little close. The z axis is the weakest part as it is a cantilever and will flex the most, A larger distance between the blocks will also reduce the bending moment on the y axis (rotational lever arm effect) What travel where you looking for?
The z axis blocks don't have to be in line with the gantry blocks and it might be worth centralising them on the plate so the bottom of the router plate is in line with the bottom y axis beam as that will mean you can lower the gantry sides (whilst retaining the same clearance)to reduce the force on the x axis bearings.
My comments are only to help maximise the performance of the parts you have and are not a critisim of your design. Happy building
Edit. whilst supported rail is stronger with regard to the rail, the bearing is weakened by not completely wrapping around the bar therefore the bearings have reduced strength when pulled away from the rail , this is easily solved by mounting the rails back to back, or in your application on top and bottom rather than on the side. For example in your sketch when the gantry moves to the left the z axis (due to cutting force) will rotate about he lower bearing on the y axis and try to push the top bearing (strongest direction) how ever when the gantry moves right it will still rotate about the lower bearing but now will be pulling on the bearing which is the weakest direction. 
Again this point is just a way of maximising the machine strength by design and I'm not saying that the method you have proposed is not good enough as it is probably more then adequate for most uses but my option just increases strength for free....
Height of the gantry needs to be as lower as possible but allow for the max depth of you work + how deep you need to to cut. for example if you work piece is 50mm and you want to cut all the way through you need to allow at least another 50mm for the cutter + shank and collet so say 125mm.
	 
	
	
		1 Attachment(s)
	
	
		Re: Let The Fun Begain, New build on the Table.
	
	
		Hi Ross77
Right here I am again with the Mk10 drawing of the Z axis, I may see one or two other ways of doing this but I thought I would let you see where I am at this point. 
I have about roughly 120mm of travel in the Z axis.
Now about the height from the  bottom of the router mounting to the table top. Do you mean that would be 125mm?
Attachment 8755
	 
	
	
	
		Re: Let The Fun Begain, New build on the Table.
	
	
		Yep that looks good. Mk10? so you have only just started then:friendly_wink:
I would increase the distance between the y axis rails to match the z axis plate to increase bending and torsional resistance. 
If you have mounting clashes with the blocks then widen the plate, it would be best to make any compromises on the y axis side of things as this is more forgiving than the Z axis.
Yes I did mean 125mm from the bed to the router base. Is that not what you were asking?
	 
	
	
	
		Re: Let The Fun Begain, New build on the Table.
	
	
		Thanks Ross77 yes that is what I needed to know, I was just double checking Before making any more adjustment. I appreciate your help.
	 
	
	
	
		Re: Let The Fun Begain, New build on the Table.
	
	
		Just thought I'd better check but the 125mm was only an example, actual value will depend of your router collet and cutter length.  
What router/spindle are you using? can it be fixed at the top as well? as the L shaped mount is also a bit weak.
	 
	
	
		1 Attachment(s)
	
	
		Re: Let The Fun Begain, New build on the Table.
	
	
		I have now reinforced the L shaped mount. Its now braced right to the top now.
The router that I will be using is the Kress 530 with a 3.175mm and a 6.35mm collets and I was going to get the mount from CNC4YOU.
Here is the latest drawing of the Z axis.
Attachment 8782
	 
	
	
		7 Attachment(s)
	
	
		Re: Let The Fun Begain, New build on the Table.