Re: Accurate Strong Gantry
Quote:
Originally Posted by
vargai
1. 1500 mm long rail position-side or top ?
2. Is there any good carrige pattern to eliminate the double ball screw?
3. At belt synchronizing version1 or version2 is the better? -my logic says the equal belt length in any drive direction give more accuracy .
1. As far as I'm aware the bearings and rail do not care which way you have them but you need to think about how you will mount them so that they are level with each other across the frame, and that they are the same distance apart along the frame.
2. On a 700 wide machine I think you will need 2 ball screws.
3. As you say, the equal belt length method looks best.
Re: Accurate Strong Gantry
Thanks form the prompt answer,
[QUOTE
3. As you say, the equal belt length method looks best.[/QUOTE]
When I am saying equal length I am thinking of the extra synchronizing belt that has the same upper and lower length .
In the lower figure the drive is symmetrical so I am confused which of you mean the best
Re: Accurate Strong Gantry
Quote:
Originally Posted by
EddyCurrent
1. As far as I'm aware the bearings and rail do not care which way you have them but you need to think about how you will mount them so that they are level with each other across the frame, and that they are the same distance apart along the frame.
I am planning to machine the base in one operation with bearing in mind the cost so at the moment side mount seems stronger and safer for the rail
Re: Accurate Strong Gantry
Quote:
Originally Posted by
vargai
Thanks form the prompt answer,
3. As you say, the equal belt length method looks best.
When I am saying equal length I am thinking of the extra synchronizing belt that has the same upper and lower length .
In the lower figure the drive is symmetrical so I am confused which of you mean the best
Version 2 where the motor is central.
Re: Accurate Strong Gantry
The price of the belt and pulleys will be same as the price for one driver more. So if you invest in one more motor you would have it properly made. Not that it would not work like that with one motor.
Re: Accurate Strong Gantry
Thanks your comment, because this is one of the most critical issue here. You are aware of JazzCNC's intention namely two motor can cause big problem at synchronizing failure .
Just example for calculation with overestimated values:On a 1 m long belt 1 mm elongation on a perimeter of a 360 mm pulley gives 1 degree delay- derived to the 20/10 ball screw means 10 mm/360=0,027 mm deviation-looks not bad
But this is just theory again-reported data overrides the best theory.
I am planning to use 200-300 W servo here and master slave drive is quite expensive.
I saw you used two motors on your just made machine-I think steppers that gives torque protection but with potential step loss during operation
You know the target is 1000 N cutting force.
I need to see about this issue in the threads and your opinion is appreciated in the belt versus dual motor question.
Br
István
Re: Accurate Strong Gantry
Hi, calculations are one thing, real life another. I have belt driven machine on all axis. So i believe i know something about belts. The only thing positive in this design is that the belt is perpendicular to the ball screw, means its not driving directly the machine but transferring the movement.
What size type belt and pulleys?
How heavy is the gantry with all motors, rails and so? Not sure if you could drive it with one 300w servo at all.
I know Dean /JazzCNC/ is driving his machine like this, but you have to make sure about the proper belt size, corresponding motor and make sure that the accumulated inertia of the pulleys and ball screws will not limit the machine speed.
And looking at 0.05mm means tthat you must strive at 0.01mm. That means cheap chinese pulleys will NOT work. Have that in mind. And if you need to lower the inertia you must buy expensive aluminum pulleys or custom made that small size. I have 20 crap pulleys laying around cause i thought they were a deal from aliexpress.
Re: Accurate Strong Gantry
PS. It would be better if the spindle center is inside the bearings that move the gantry looked from side. Means you should offset a bit more the gantry to the back. You have to imagine that when all is mounted and weights what it weights the center of the weight must be in the center between the 2 bearing that move the gantry.
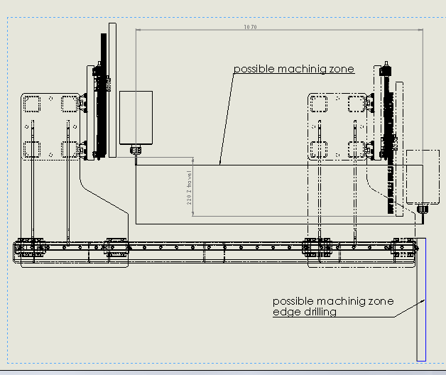
Re: Accurate Strong Gantry
understood what you mean, just wanted to reach the perimeter of the machine table with the tool to have access for edge drilling that is advantage at high work piece -but this is not main issue.
When I think of a standard VMC the real heavy consoled spindle house running up and down on a vertical rails with about 400 mm or more offset and the bearings stands it- it is their job.
I am using 25 mm bearings that is IMO strong enough for normal operation, however I will consider your suggestion-every detail can be important.
Perhaps it will help to support the rail side form above against the constant torque and lowering the console lever according to your suggestion