its for the linear profile rails.
Printable View
its for the linear profile rails.
Never assume that the machine shop knows what you mean or need. You can however be as descriptive as you want. For example, you add an arrow to the threaded whole with a note leading from it saying: 24 X M4x0.7 8mm MIN FULL THREAD. DRILL POINT OPTIONAL TO DEPTH 12MM
thank you :)
When i send to somebody some things to machine for me i do the following:
/thats how i like to receive also/
- on the 3 D drawing i group all same plate thickness objects at one plane and near each other and send each group as separate file.
The file is accompanied by another JPG snip which shows basic dimensiones, so when you take a glance you could see more or less what the job dimensions are.
-Each piece has detailed snip or even some times 5, with hole detailed explication, where tapped, where pass through, hole clearance, etc.
What i hate to receive is 15 separate files and i waste 2 hours to import them and check dimensions only to give a quote. When they are grouped i could import them at once and could judge material weight, hence price for a minute, not another hour.
if machining 5 parts that go together, i want also to see how they interact, so i always need also the assembly file with them. 99% of the files i have seen or have a design mistake, something not well thought or is done from people who dont have any idea how this will be mounted together in real life.
I have yet to see something that does not need any correction. dealing with fellow DIY crowd i mean.
thank you that makes alot of sence to do it that way tbh and feels natural.
cheers
Ash
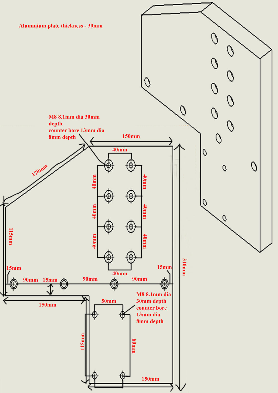
just to throw something in there would this make sense for you guys or does it look confusing :)
Attachment 17622
I think you have too many measurements some are duplicated also the bottom 4 holes are drawn differently ie not showing the countersunk bit. I don't see the line down the centre holes sizes. If all the holes are the same size you can say that. Unless the holes tapped just say the hole size ie not M8 8.1 as a M8 hole would be 6.8mm to be tapped.
If hole are through holes I would say that instead of 30mm.
I would reference all the measurements from one end and one side. Do you really need 30mm plate?
Do you have a dxf file for this. If not I can do one for you.
Just to add to what Clive says, I don't see any measurement for the actual position of the 4 and 8 grouped holes on the plate, try and pick two sides(Datums) to take the measurements from and maybe positional tolerances if its important to you. Also you don't need the length of the angled side, an angle would do.
Cheers, Charlie
ahh yeah sorry i forgot about the position of the holes, as for the bottom 4 the reason why they are different is because the counterbore are on the opposite side. i do not have a dxf file as im new when it comes to drawing so that was actually my first drawing to show you guys lol.
cheers
Ash
forgot to mention i want a close fit on the through holes so instead of 8.4mm i wanted 8.1mm thats what i meant to of said.
Ash