-
Boxford TCL125. (Fresh start )
Right a new thread on this
Taking advice from here , I am about to start building a board to make this work.
I intend to remove Boxford's boards but retain the Lenze controller. Anyone wanting to have a play with these boards shout now!
What is the function of the optoisolator and do I need to retain it ?
Then the transformer has tappings at 20v with rectifier ,
Other tappings at 9v (x2) , and 12v seem to have their rectifiers external, on the the processor board .
Am I better to do away with this and fit distinct PSUs for each required voltage ?, or retain this and rectify the outputs
I am trying to fathom the circuit of the relays , with their forward , reverse, and latching functions for spindle control . These have been working so hope to retain them, Will spend some time getting head around their function
All suggestions welcome
-
1 Attachment(s)
Re: Boxford TCL125. (Fresh start )
So in the absence of new advice, I have gutted the machine. Boards out , removed all limit and interlock switches. I will replace those I feel are really needed. Will put in a new Estop , and home switches, so now looking at what is left of the spindle control circuit.
This is me following the ancient Northern principle
"Let the dog see the rabbit"
Attachment 28946
Am currently trying to identify the wiring I am left with, so give me time on that one!
I will be building a new panel, with stepper drivers and BOB, and am not expecting too much difficulty with making X and Z operate from the computer .
Bit of trepidation though about making the spindle operate and vary the speed, in coordination with the traverses .
All suggestions considered !
-
Re: Boxford TCL125. (Fresh start )
Have you decided on the control software yet? That may impact a lot of what you need to consider to rebuild the machine.
You should have guessed by now that the key to coordinatig spindle speed and axis actions some form of spindle measure/feedback. I'd expect that the TCL should have a spindle position encoder of some description - figure that out (if it can be re-used) and that should make for an easier life.
When looking at spindle speed control - my experience of trying to LinuxCNC with a closed-loop PID control to get accurate RPM (not really necessary) was thwarted by the internal filtering of the spindle controller... if I could advise anything it would be to KISS.
You've got the mechanics of the lathe already - the control system should be fairly straightforward. Happy to chat through ideas (and maybe steal some of yours).
-
Re: Boxford TCL125. (Fresh start )
Am open to suggestions on the control software . Had a look at the lathe function in Cambam and it left me puzzled.
The TCL has an optical encoder so hope I can use that. it does however tie into the processor board so may also have to keep that.
The outputs to the Lenze contoller are also taken from that board so may be simpler to retain it than to fix up an alternative speed control but I have yet to fathom that function.
It only recently dawned on me that spindle speed and Z traverse have to be perfectly coordinated for say screwcutting!
Would be pleased to have someone hold my hand on this. The published diagrams from Boxford are not great and there is no real useful guidance in the manuals .
-
Re: Boxford TCL125. (Fresh start )
I presume the optoisolator board you mention is the one on the lenze controller, if so leave it on and use it, as it isolates the 0-10v spindle speed from your control board to the speed controller, a safety circuit.
If you have a look at the wiring diagram, either in the manual or the one i posted on tudder thread, you can trace it back, control will be from the 0-10v spindle speed output from your new controller, and a switched 0v to the relay, The relay will have a default position when lathe powered this is normally reverse as turreted lathes machine from the back, but if your using a toolplate or quick change tool holder the you can run it either way as default, to change the default direction, simply swop the motor wires over in the relay.
The photo interrupters are wired together so you have +ve ,-ve ,sig a and sig b . from memory if you trace the connector on the lower board the +ve voltage comes from a gert long resistor, you should be able to trace it back and mimic the supply.
The whole speed control direction circuit seem to be a bit of a nightmare at first glance ,but is easy to understand one you work it out.
Will post a bit more was going to say tomorrow but suddenly realised it will still be today, lack of sleep messes with the days ;)
-
1 Attachment(s)
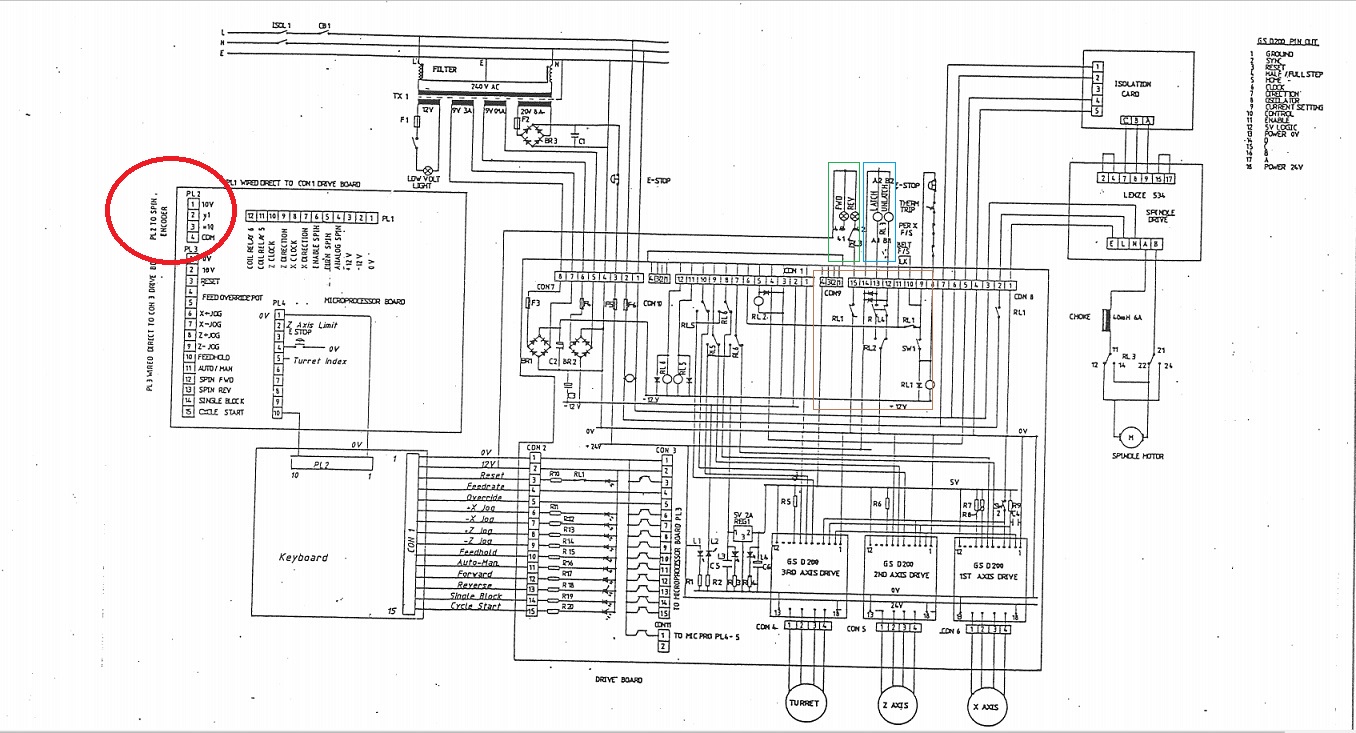
Re: Boxford TCL125. (Fresh start )
Right , So??
Circuit here and I will expand on my issues .
Please remember i am of the mechanical rather than electrical persuasion so Wiring diagrams are not part of my native language .
Attachment 28963
The spindle encoder Plugs into the processor board (highlighted red ) where I presume magical and mysterious things happen to the input , before it is sent on to the drive board .
RL1 (brown) which is integral then seems to shuffle things in a manner I cant yet get my head around via the forward / reverse (green box) and Latch /unlatch (blue box) which I am presuming is controlling the big grey external relay RL3 for spindle direction
So the function of the spindle seems to be dependent upon both boards ????
How can I chuck them out?
-
Re: Boxford TCL125. (Fresh start )
Hi John
For now ignore the green box you have drawn, they look to be a connection to the FWD/REV bulbs in those 2 switches on the control panel (most likely 2 thin wires going from rl3).
The spindle speed is reliant on a 0 - 10v signal coming from whatever control board you will use.
FWD /REV will also be dependant on the controller you use, at switch on Relay3 will switch to one position, this will be either Forward or Reverse. Lets for the sake of argument we'll call it default position.
You will need to copy the circuit with additional relays.
Most s / controllers have a relay on board for fwd reverse if so, there will normally be a nc / no and com connection.
So you would connect the com(mon) to 0v from pwr supply.
NC(normally closed or for the sake of quickness On as it is directly connected to the com terminal). would go to one ov side of Rl3
NO(normally open or for the sake of quickness Off as it is only connected to the com terminal when selected and at the same time Nc will disengage). would go to Tudder ov side of Rl3.
Sorry if it's too simplistic as i don't know your comfort level with electrics.
Now if you look at the diagram you posted you will see that one live terminal is also relay driven from RL1 , This is a safety relay to ensure lenze board powers up after the pc connection is made, However as you will be using your own electrics simply connect the new relay (make sure it is a mains spec relay as it will be switching the live supply to the lenze controller) and needs a dc coil ,connect the coil via the on off switch ,so the spindle only has power when that switch is on.
You can add another change over relay to the spindle drive in between rl3 and your bob relay, will attach a diagram for that option based on the circuit diagram but bear in mind you wont be using the boxford board so these relays will need to be sourced. (PM your address and i will pop an omron my4 relay and holder in the post to you, will be the end of next week though).
I also switch the mains through a relay via the E Stop switch as mine has 2 micro switches on it one nc and one no
Do one bit at at a time
-
1 Attachment(s)
Re: Boxford TCL125. (Fresh start )
Forgot to mention the photointerupters, the photointerupters can be powered independently, so can attach to a supply board(not sure of the operating voltage so hold off for a tick.
You have 2 one changes state once per rev of the spindly the other changes however many times it sees the holes all around the disc ,I'm not going to count em ;), but the clue is in the naming of the signals on the diagram.
In mach or other software the single hole wire will be the index wire.
the multi holed wire will be the timing wire
Some software can't pickup the index pulse so then after checking the signal changes, you may need to open out the single hole, to i think 6mm wide ,but do it a bit at a time and retest until it picks that signal up in software's.
Hope it helps
a I've attached a diagram which should hopefully guide you in how the fed/rev relays work, bear in mind that rl2 represents the no/nc connection on a bob and although d
drawn with one wire in from 0v there will be two, i purposely left it like that so you can see hoe it works, the blue wire simply represents the way the 0volts is switched to trigger rl3.
Can i ask a favour, can you let me know which buttons on your control panel are ,on/of or momentary operation.
Attachment 28965
-
Re: Boxford TCL125. (Fresh start )
Thanks Inee but your attachment is not working for me .
I am getting the gist of your instructions but I am sure all will be clear with a Pic :thumsup:
-
Re: Boxford TCL125. (Fresh start )
Quote:
Originally Posted by
John11668
Right a new thread on this
Taking advice from here , I am about to start building a board to make this work.
I intend to remove Boxford's boards but retain the Lenze controller. Anyone wanting to have a play with these boards shout now!
What is the function of the optoisolator and do I need to retain it ?
Then the transformer has tappings at 20v with rectifier ,
Other tappings at 9v (x2) , and 12v seem to have their rectifiers external, on the the processor board .
Am I better to do away with this and fit distinct PSUs for each required voltage ?, or retain this and rectify the outputs
I am trying to fathom the circuit of the relays , with their forward , reverse, and latching functions for spindle control . These have been working so hope to retain them, Will spend some time getting head around their function
All suggestions welcome
I was watching you orignal thread with interest.
I've jsut come out of the other end of a Boxford VMC190 conversion to Linuxcnc
I would be interested in the pair of boards that have the drivers on them, two or three block things about 2" x 3"
You will be using more modern drivers I assume.
I kept the Lenze speed controller, but my isolation board on the end of the lenze was toast, so I had to wire the lenze into the control board. This is not that straigth forward as the lenze 0v to 10v (for spinlde speed control) floats at 110v to 122v
I found a step/dir to 0v to 10v board with on/off relay and its all working a treat now
I converted an ORAC Lathe to LinuxCNC about a year ago and its been great, It threads a treat which was something I could never get my boxford BUD running Mach3 do. IT all done on the cheap with a PC mother board parallel port and an additional port card
The VMC is also using a single parallel port card that provides two parallel port connections
In LinuxCNC set the first one up as OUT and the second as IN and you have more than enough inputs.
Both machines have a control panel with real buttons
Cheers,
Paul
-
Re: Boxford TCL125. (Fresh start )
Have you worked out what voltage the step motors need ?
This for me is the starting point
This will then allow you to select a suitable power DC supply and a pair of stepper drivers
My ORAC needed 70volts so I bought a 68v DC psu and a pair of step motor drivers
The paint was about £45 and the drivers £35ish each
Pair this to a £15 BOB utilising the parallel port a linuxcnc and you are there
Linuxcnc will run quite happily on a very old spec PC either find one on free cycle with a parallel port or get one without and fit one or two pci parallel port cards. eBay at about £7ea also factor in the parallel port cable at about £3. These are 25 pin male to female normally
You need 1 input pin for the eStop
1 for the homing switches
2 for the spindle synchronisation or 3 if you want the spindle to maintain sync when reversion rotation ( I can’t thing of a need for this other than ridged tapping and I can’t think why I would need this on a lathe ) this is know as quadratur (likely spelled wrong)
You can always add another parallel port card for another 14 or so inputs but you will need to work around the option couplers in the BOB
This had be flummoxed for some time as I could never get the second parallel port to work in input mode. It turned out that it was working perfectly in input mode but the BOB was expecting say pin 2 to be an output and as an input pin the option coupler was working the wrong way and not allowing the signal to come through
I only wanted the second parallel port to drive physical buttons so as there was no power to these external buttons I thought sod it and wires the buttons directly to a 25 pin D connector thereby making my own very basis BOB
It’s been working a treat for 12 months
Setting up linuxcnc is not as daunting as it may seem
The DownLoad is copied to a pen drive that you use to boot the PC from. You can trial linuxcnc from it and if you are happy with it you can then install linuxcnc from the pen drive to the pc hard drive. All done in about 20 mins and no scary questions to answer
Using the step configuration wizard in LCNC gets you a basic lathe setup and only takes about 10 mins to produce
It helps if you know your steps per rev on the steppers and the reduction ratio to the lead screws
Take the std pin setup offered by LCNC and wire your stepper drivers accordingly
Pins 2&3 are X 4&5 not used 6&7 are Z
I use pin 10 as eStop
Pin 11 for home switches on x & z
Pins 12 & 13 for the spindle pulse and trigger
Pin 15 is a spare input
Pin 17 for spindle on / off
I also used another output pin for the pwm out that is feed into the lenze isolator board which in turn feeds the lenze to provide swindle speed control. The pin 17 is connected to the BOB relay which is connected to the lenze directly to switch the spindle on and off via m3 / m5. Spindle speed is via m3 with an S positive number say S1000 for 1000 rpm
You need to count the number of slots in the spindle disc and feed this into the calculation in the step confit wizard on the PWM page
Happy to talk you through any of this I can even send you copies of my Hal and ini files
I would use linuxcnc 2.8. It’s just come out but as been in a kind of beta for ages
I have a down load link for mint using LCNC 2.8
Go directly to gmoccapy as the user interface instead of Axis which is the default
Gmoccapy is a far nicer interface and looks like a cnc controller where as Axis looks like a computer screen
I’ve used mach3 and linuxcnc and linuxcnc is head and shoulder better than mach3
It’s also rock solid
I would convert my boxford bid to linuxcnc had I not had invested £200 on a pokeys control board when I thought mach3 was the dogs dangly bits - we all live and learn I guess just an expensive lesson
There looks to be enough room on your 160 to fit the computer motherboard into the electronics area of the machine but you may need to box the PC power supply in a box out side of the machines case
I did this on the ORAC and it makes for a very neat installation, the PC control buttons are brought into the front of the lathe control pane along with control buttons for stop start pause step coolant on off and coolant speed control (I use a peri pump to accurately drip coolant onto the tool)
Hope this gives some idea of what can be done for well under £200 less if you have the PC or can get one from free cycle local car boot sale etc and a little smart shopping
Finally if you are binning the boards removed from the 160 I would like the driver board as a spare for my vmc190 as I chose to reuse the drivers / psu / steppers
Cheers. Paul
Sent from my iPhone using Tapatalk
-
Re: Boxford TCL125. (Fresh start )
Hi All, and thanks for your inputs
First of all with regard to my old boards . I have had a couple of people declaring an interest in them which causes me a dilemma .
How do I decide who to offer them to. I dont fancy an auction , but would like them to go where they will be of most use .
Can I ask that each of you who are still interested , please PM me and tell me what use you intend to put them to.
Hopefully this will help me to decide . Failing that I will get my wife to pull names from a hat !
-
1 Attachment(s)
Re: Boxford TCL125. (Fresh start )
From the circuit It seems that the motors require 24 V and on that basis I have bought drivers which range up to 42v
It is my intention to get all the motions functioning, utilising Mach 3 purely to provide jog inputs , after which I will go for a linux option to provide me with a functioning machine.
I am intending to use the existing power source (because it is there) It has outputs of 20v, and 9V which seem after rectification to yield 24v and 12v ( -ve) to the boards but the 12v rectifiers are integral in the board and I cant make out what its capacitor is . Will have to look more closely at it. Clearly I have to add a rectifier if I go this way.
I have a selection of BOBs, one with 0-10v output but only make / break switching at the relay.
I also Have a DIYCNC spindle board which might be suitable
Attachment 28974
I am hoping that this will give me the the Fwd rev outputs shown in Inee's diagrams but I am not clear on the relay connections shown.
RL1 and RL2 are incorporated in the board , so do I have to insert another relay into the circuit and could the above one fill this role .
Finally with respect to the spindle reversing relay I dont see any numbers on the base . Is there a convention here that I am unaware of ?
It has been working so I am guessing that it will continue to do so one I get the right signals to it .
Thanks again
John
-
Boxford TCL125. (Fresh start )
That diy cnc board is the exact board that I have used to provide step/dit from linuxcnc and from it you get a 0 to 10v output which is isolated to feed into the lenze speed controller
You also use the relay to switch the lenze controller
I can provide the lenze connections to the soy bc board if it will help you
Paul
Sent from my iPhone using Tapatalk
-
Re: Boxford TCL125. (Fresh start )
Soy bc ?
Any info is helpful so yes please
-
Re: Boxford TCL125. (Fresh start )
Hi john
i have one of those spindle boards, as depronman said it's a good little board.
By spindle reversing relay i take it you mean Rl3 in your Boxford, if so the terminal numbers are printed/stamped into the relay holder ,just above the terminals so either use a mirror or take photos of the wiring and also take some more when you have removed the top set of wires.
Or if i remember tomorrow i can pop a pic of the base up
-
Re: Boxford TCL125. (Fresh start )
I think I have sussed the control wires to the relay now Inee, and I havent disturbed any others so hoping it will work when it gets correct inputs .
Will see what happens when I get new power supplies for BOB and The relay board .
Thanks to all for your help,
-
Re: Boxford TCL125. (Fresh start )
So being a bit pedantic here in trying to understand the difference between 0v, and Ground?? Remember I am not an electrician.
On the diagram included above, the Small DC voltages are shown as say 12v to 0v. AC supply is L,N,and E, and the 0v is connected back to earth anyway.
Some boards have both 0v and GND suggesting at least a subtle difference , And the TCL 125 control panel is a veritable spaghetti of green and white cables all of which seem to be connected to the metal chassis anyway. Is it OK to connect anything resembling 0v,,GND, and earth to the metal chassis provided that it in turn is securely connected to the incoming Earth conductor ?
I will be adding my new power supplies to my upper deck tomorrow and clearly it would be neater if these could be earthed to the chassis , and where a PSU has connections to L,N,E, and V- ,V+ is there any reason why I cant link E and v- and fasten to the chassis locally to the chassis locally?
-
Re: Boxford TCL125. (Fresh start )
HI John,
Equally I'm not an electrician, but I have wired up a few CNC controllers, so please take this as what worked /works for me as against how it should theoretically be done
All of the mains (E) earths should be connected to a single metal bolt which is electrically and mechanically connected to the machines metal case. From an electrical noise and ground loop elimination point it is important to have one single earth point. I Bolt the power supplies to the chassis plate which in theory will cause the PSU to be earthed, but I always connect the E terminal to the single earthing point.
Then connect the maines (L) live and (N) neutral leads to the Power supplies, you would normally take the lives through a fuse / breaker and some sort of contact breaker as appropriate.
On the BOB side I would confirm using a multi meter in ohms setting that the 0v and the GND connections are one and the same. They are not always connected together due to the BOB possibly isolating say the PWM signal from the PC, therefore the GND connection and the PWM 0v connection ideally should NOT be electrically connected. Some better quality BOB are made like this, other cheaper BOB are not like this.
When connecting to the Lenze Speed / Spindle controller for example its VERY important that the 0v of the PWM output is NOT connected to the GND terminals on the BOB or to the machine earth, the reason being the lenze controller needs a 0v to 10v signal to provide the speed control signal (0v = spindle stopped, +10v = spindle at full speed, +5v = spindle at half speed) BUT the Lenze 0v volts terminal is actually at 110v compared to mains earth and mains neutral and for that matter to the PC's ground. It goes without saying that it would be terminal for the BOB and the PC if 110v is applied to the PC ground.
This is the reason why the BOB MUST isolate the PWM 0v from the BOB GRD connections.
My BOB £8 from ebay, very common one with a single relay, does PWM and if used to control a VFD its perfect, however it is NOT suitable for the lenze controller as the 0v PWM on the BOB is electrically connected to the GRN connections on the BOB.
I had to work around this by using a DIYCNC spindle controller board which is feed with Step / Dir from the BOB and a 12V and Grd power feed. From this it generates a 0v to 10v voltage and importantly this is totally isolated from the Gnd & 12v power feed into the board AND also isolated from the Gnd of the BOB
So, in summary this allow the DIYCNC board to provide the 0v to 10v signal into the Lenze controller, which effectively means that the Lenze input voltage will vary between 110v and 120v
On my BOB I found that all of the GND and 0V connections where connected together, this is OK but care needs to be taken with things like Limit Switches to ensure that when connected to the BOB that one side of the limit switch is not connected to earth by virtue of being attached to the machine frame.
Hope that helps, fell free to give me a ring if anything is unclear
Paul
-
Re: Boxford TCL125. (Fresh start )
Hi Paul
I had thought that the isolation cad on the lenze controller gave that protection.
If you look at the wiring diagram I inserted earlier in this thread , the 0v connection from the iso board ( term 5) come back to a common 0v buss which picks up the the drivers and rectifiers on its way back to a direct connection to the Mains Earth.
I will be using the Bob which was repaired for me by Doddy which has the facility for a 0-10v signal but only a make/break relay.
Does the DIYCNC spindle board generate its own signal output, so no need to connect the BOB 0-10 signal ? Or might it be better to take the speed regulation signal straight from the BOB and cut out the middle man as it were?
-
Re: Boxford TCL125. (Fresh start )
Hi John
Sorry I forgot that my isolator board on the lenze was buggered.
So I had to work around the lack of isolator board
You can take the simpler root of using the pwm output from the BoB into the input on the lenze isolator board
You also take a couple of wires from the lenze controller into and the out of the BoB relay
So the relay will turn the lenze controller on and off
The BoB typically as the par port pin17 output set to control the relay
So linuxcnc in Hal links the par port 17 out to the m3 command and spindle start buttons
This in turn triggers the relay on the BoB and that turns the lenze on
You then send the S value. Eg s1000 to the BoB and thee BoB generates a voltage (pwm) between 0v and 10v. This voltage is sent to the lenze input and thus creates a specific speed of ration on the spindle
Sorry about the confusion
If you did t have the isolation board then this is where the diycnc board comes into play, it would take step/Dir pulses from the BoB and use that to create a 0v to 10v output for the lenze
Cheers Paul
Sent from my iPhone using Tapatalk
-
Re: Boxford TCL125. (Fresh start )
Quote:
Sorry about the confusion
If you did t have the isolation board then this is where the diycnc board comes into play, it would take step/Dir pulses from the BoB and use that to create a 0v to 10v output for the lenze
Or one of these:-
https://www.ebay.co.uk/itm/PWM-to-Vo...72.m2749.l2649
-
Re: Boxford TCL125. (Fresh start )
Hi folks
A few steps forward today. 0-10v from the board is varying spindle speed up to about 3500revs
So now I need to find our how to wire the spindle encoder and configure it . Not intuitive this :dread:
-
Re: Boxford TCL125. (Fresh start )
John
Are you doing this with mach3 or linuxcnc ?
You should find the optical spindle encoder sensor wire it’s got four coloured wires in on cable. It went to the LH end of the board that you sent me. Has a flat inline style connector
On my vmc190 then optical sensor on the machine end of this cable was caput but I found a suitable optical sensor in my bits and bobs tin
You will need to establish what sensor is being used and google it for a data sheet
In principle the optical sensor is a led on one side and a sensor on the other they will share a common ground line
Connect the led negative to the Bob ground, the plus side of the led to the required voltage on the Bob (this is where the data sheet comes in handy) let’s assume it’s 12volts
Then the trigger wire to the Bob input pin that you wish to use
Then you rotate the spindle you should see the pin flash one per revolution in mach3 or LinuxCNC
There should be two optical sensors you want the outer one of the two for the single. Pulse per rev (only thing that mach3 will use)
You do the same on the inner sensor and map that pin to the A of the encoder. The single pulse per rev is the Z connector
In linuxcnc you can do all of this with the step config wizard
Paul
-
Re: Boxford TCL125. (Fresh start )
Hi john.
the colour codes for the wires is in the manual, the index is a single slot on the disc, the timing has a lot more. If the index doesn't trigger correctly you need to widen the slot a tad
-
Re: Boxford TCL125. (Fresh start )
Am playing at the moment in Mach 3 but fully intend to convert to Linux when I get everything working!
I have the encoder cable but just unsure how to connect it . I dont have a pinout for this Bob. (They dont do instructions for this price )
https://www.ebay.co.uk/itm/Mach3-CNC...0AAOSw6Olffu9N
I got to the pin settings for the 0-10v output by trial and error with motor set for step /direction control rather than PWM. It works but I may not have it right and I am struggling to understand how a step /direction signal controls a relay or a voltage output , so I am apprehensive about connecting an encoder without understanding what I am doing and why I am doing it .
Is there any clear guidance or manual for this task.
Prior to this my only experience was the mill function. I can handle the idea that inputs to pins 2 and 3 provide step and direction instructions to a stepper driver for X motion.
Y and Z similarly. and the CNC4 you board had specific instructions for spindle "on " control. I never got around to varying the spindle speed .
Choosing the pin settings to make X Y and Z movements happen seems intuitive enough .
and spindle relay on is not too hard to grasp in Mach. But pwm and encoder settings are at the moment testing my intellect a bit
I have looked for pin settings for this board but cant find specific ones online .
Which Manual are you referring to Inee? Cant see anythingin the Boxford or Lenze manuals and I dont think I have one specifically for the encoder.
Will explore a bit more .
If someone can hold my hand here and tell me which pin settings to select to get me going , I suspect that things will begin to fall into place and from there I can maybe ask the relevant questions to give me an understanding of what settings I have made .
-
1 Attachment(s)
Re: Boxford TCL125. (Fresh start )
Hi john the boxford manual (will link in a tick
Below is the manual should be for your bob,
Attachment 29087
-
2 Attachment(s)
Re: Boxford TCL125. (Fresh start )
As far as i can see the index and timing sensor are wired thus .
Pin 1 is Green 10v
Pin2 is Blue sensor output x1
Pin3 is Red sensor output x Many
Pin4 is Yellow 0v com
This was based on pics on your other boxford thread , the pins/ use data is from the boxford manual
The pics i used are below
Attachment 29089
Attachment 29090
Regards
Inee
-
Re: Boxford TCL125. (Fresh start )
I think I may have blown the LEDs
they are labelled as RS 306-061 but no longer supplied by RS an I couldn't find a Datasheet
If it has 10v input I reckoned it would be safe if tried it with a 5v supply but saw no signs of light .
Tried with a 12 v I saw a single tiny flash then no more .
Then I found this data sheet https://www.silicon-ark.co.uk/datash...-datasheet.pdf
I am suspecting I may have zapped it with too much reverse voltage. could that be ??
Where to I go for replacements ? Can I select ones which would be oK with the voltages I have available , ie 12 v or 5 v
-
Re: Boxford TCL125. (Fresh start )
John - firstly, these are usually infra-red, so it may well have been illuminated even if you couldn't see it (hint - you can often get a mobile phone camera live-view to witness IR LEDs).
Reverse voltage?, yup, a good way to fry an LED.
The good thing is these are generally fairly standard devices, although pin-outs may vary. And drive voltages?, can be pretty much whatever you need. I'll assume you've not hit this before otherwise you'd not be asking.. Take the supply voltage, and subtract the forward voltage drop of the LED. Then divide that by your chosen forward current. That gives the value of a resistor to place in series with the LED for it to operate at that voltage. That Datasheet indicated a max forward current of 40mA - that's an absolute max rating, a rough rule of thumb is around 10mA.
So, if you're trying to drive at 5V, and the Forward Voltage is 1.8V, with a Forward current of 10mA (0.01A), that's (5.0-1.8)/0.01 = 320 Ohms, nearest easy found value is 330 Ohms. If you want to drive at 12V, then (12.0-1.8)/0.01 = 1020 Ohms, nearest easy value = 1000 Ohms (1k).
Whichever resister value you calculate, you place the resistor in series with the LED then drive that from the DC supply.
Note, its generally considered unhealthy to reverse bias an LED - they go pop at quite a low reverse voltage. Even if they don't pop, then can be significantly degraded.
Amazon sell reflective opto-couplers - there's generally not a huge difference in the 4-pin devices (2 pins for the LED, 2 pins generally for a photo transistor). They should be pretty much interchangeable.
-
Re: Boxford TCL125. (Fresh start )
-
Re: Boxford TCL125. (Fresh start )
Will try to snag a couple of those inee
-
Re: Boxford TCL125. (Fresh start )
Ahh doddy !
So simple and straight forward. How could I possibly get it wrong? :stung::smile:
So our friends at Boxford chose a 10v output without any apparent resistor in series? or where did they hide it
And I guess I will have to use 12v so maybe will have to add a resistor, or maybe 5v but I will need to go back to my 1968 physics A level notes if I really want to understand your calc :shame:.
I can manage most mechanical stuff , and have a reasonable grasp of electrical machines , single and 3 phase, Even managed to get a handle on electronics in the days of thermionic valves , but I have to say that when the world turned upside down, when the time came when current stopped flowing from positive to negative and it was decided instead that current was a stream of negatively charged particles careering towards a positively charged source then that was the time at which my "electronic "head started to hurt .
What I am saying is you have to bear with me a bit while this stuff sinks in . When I get my new switches, I may need to come back with the spec, and ask you to turn forward voltage and forward current into a suitable source voltage / resistor combination.
Hope you haven't got too sick of me by that time :redface:
-
1 Attachment(s)
Re: Boxford TCL125. (Fresh start )
OK so I have ordered new switches and in the meantime had a closer look at these
Attachment 29091
So this might be surprising but looks like Boxford have chosen to wire these lamps like xmas tree lamps ie in series .
So our green supply wire seems to ring around the switch commons then on to the two lamps in series. How do I add the forward voltages in this configuration??
Now as Inee points out from the Boxford wiring diagram the input voltage is 10v and there is no sign of a resistor . Is it possible that the lamp resistances stack up so that no external resistor is needed . and how would that be affected if i chose to supply 12v? :distress:
-
Re: Boxford TCL125. (Fresh start )
Hmmm, you previously linked a reflective opto-coupler, (EDIT: Ah, I see what you did there - the linked datasheet has the slotted version later in the document) these are slotted opto-couplers (same premise, just a different physical configuration) - these more common with slotted wheels as shaft-encoders, etc.
For LEDs which typically outlive the service life of the machine, wiring in series is perfectly fine, and common practice. As you probably guess, you just need to add the forward voltage drop across the individual LEDs into the standard calculation for series resistor (the advantage being that you only need one resistor).
Where this conversation doesn't need to go, but I'll mention anyway, the forward voltage drop is not absolute - it'll vary across devices, temperature, forward current, day-of-the-week, and if you look at it funny. What that means is, you always design (calculate the series resistor) based on nominal values - and the slight variances fall by the wayside... what you can't do is drive an Led without a series resistor of some sort (or rather, a current limiting device or circuit) - as any slight variance in the forward voltage drop would have a significant swing on the forward current and could result in the destruction of the LED.
So, given a wet finger of 1.8V Vf for an IR LED, at 12V drive voltage and an If of 10mA, you'd end up with a series resistor value or 840 Ohm, or closest value of 820 Ohm in the E12 range of resistor values. But, you're overthinking things a little - you can wet-finger resistor values given a safe working forward current. So, whether it's one or two LEDs, and 10V or 12V, you'd probably just pick the ubiquitous 1k resistor. It's close enough. There's plenty of other factors in the system that will impact the performance more than 10-20% accuracy of resistor values.
I'm convinced to within a gnat's arse that there will be some method of current limiting/control in the Boxford board, regardless of the schematics. It's the done thing. And the cheapest (and most reliable) method is a series resistor. It *could* be that the original opto-isolators had integral series resistors for 5V operation (after all, once upon a time 5V was common logic supply voltage), but it's almost irrelevant here - you know the opto's you're buying, you can find the datasheet, you can determine the Vf, and then you can determine the series resistor. But 1k will do.
Your schematic is functionally okay, but remember both the LED and the associated photo-transistor are polarised devices - you need to get the wiring the right way around.
-
Re: Boxford TCL125. (Fresh start )
John if your thinking to go with Linux CNC then I would plan for it now because Mach3 can only use a Single index pulse or slot for the spindle encoder, Linux CNC can use multi-count encoder and will give you much better speed control.
-
Re: Boxford TCL125. (Fresh start )
Just adding to Jasscnc reply. You will never get mach3 to thread correctly and reliably (been there got the tee shirt, cap and video)
The single pulse per rev is just not enough resolution to cut a thread
This was the one compelling reason that I changed to linuxcnc
Linuxcnc cut a thread on the first attempt and as done ever since The only failure I have had was when I tried to increase spindle speed beyond what the lathe could cope with in terms of accelerating the Z axis and decelerating it
I have a job that needs a M10 x 1.5 cutting on the end of an aluminium bolt. I thread at S500 in 10 passes with two spring passes fine every time.
The stability of linuxcnc over Mach3 is a very welcome bonus. Linuxcnc as never screwed up on a run of parts, I cannot say the same for mach3
now the setup of the two is a different matter all together. But a basic lathe setup can be done with the step and config wizard and is perfectly usable
Paul
-
Re: Boxford TCL125. (Fresh start )
I plan to go there Jazz, but have been working with Mach which I am moderately familiar with . Waiting the switches to give me spindle speed measurement and prove to myself I have a working machine . I have an E stop but need to reinstate interlocks and z traverse limit. Has been a steep learning curve but I would rather go a step at a time and Iinux will be one of those future steps.
-
Re: Boxford TCL125. (Fresh start )
I accept what you are saying too Paul .
I just feel I need to get it doing some plain turning first in mach . Will go to linux before I attempt any serious threading.
My target is to do a few shouldered bolts for vintage motorbikes . Linux probably has to be part of that project.
-
Re: Boxford TCL125. (Fresh start )
Get it running on mach3 then but forget about the spindle speed feedback altogether until you jump to linuxcnc
It will not thread in mach3 so other than getting a spindle speed readout there is no point
Paul