Threaded View
-
27-02-2018 #1
Hi
I've posted this up on the Denford site but thought I'd put it here too :)
I've recently bought a project Triac. I knew the Z ball screw would probably need replacing but after some advice from Colin on here I have searched and found somewhere that may be able to re-ball it.
Clearly I have to take it out and that's where the challenge comes...
I've done some googling and I haven't found any info or procedure on doing this.
There doesn't look to be enough room for the screw to be removed without removing the lower bearing.
How I see it:
1 - remove pulley.
2 - remove locknut and tab from top of screw.
3 - not sure...
I don't want to hammer the lower bearing out with the screw as it may damage it.
I can't get to the rear to remove it with my blind bearing puller as there is no access.
I could maybe drive the bearing out with a long punch being careful?
I could unbolt the column of the base and get to it that way but I'd rather not disturb everything - saying that if I got the lower bearing out I would have to fit a new bearing from the bottom anyway.
It's a bit like one of those puzzles you get at Christmas.
Any thoughts would be appreciated - particularly if I am missing something obvious.
Thinking about taking the head ball nut bracket of too to go with the screw for the refurb so the pre-load is correct.
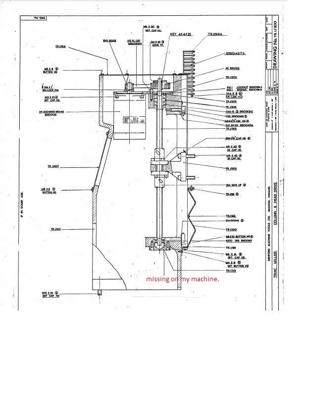
My Triac doesn't have the bearing cap as per the drawing below.
Thread Information
Users Browsing this Thread
There are currently 1 users browsing this thread. (0 members and 1 guests)
Similar Threads
-
Z axis Ball screw basic advice, please.
By PaisleyPCdoctor in forum Linear & Rotary MotionReplies: 4Last Post: 22-01-2018, 12:29 PM -
FOR SALE: Denford Triac PC inc Denford table plus chucks, and Denford CD software etc
By Piero franchi in forum Items For SaleReplies: 8Last Post: 14-02-2017, 04:47 PM -
How to machine a ball screw
By Tom_Nelson in forum Milling Machines, Builds & ConversionsReplies: 10Last Post: 22-07-2015, 10:50 AM -
Boxford VMC 260 Z axis removal? Any ideas?
By Roboteernat in forum Boxford Vertical MillsReplies: 1Last Post: 19-03-2015, 07:10 PM -
Ball screw
By luke11cnc in forum Lead Screws, Nuts & SupportsReplies: 5Last Post: 20-10-2011, 01:28 PM



Reply With Quote
Bookmarks