. .
  1. #1
    Hi Guys,

    I have started work on my first "real" machine project. The plan is to keep as much of the original stuff as i can (mostly to keep the cost down) and get this up and running. Of course i am under no illusions here, i realise that I am in the deep end of the pool!

    My current plan (please feel free to wade in and any suggestions/thoughts/advice is appreciated) is to get the spindle to run from a VFD inverter. The original driver for the motor is "fried" and i think it is the capacitors that have blown.

    I have limited power available to to garage and it is single phase (oh, how i wish i had access to a decent three phase supply) but it seems logical to go in this direction first. I am going with a 7.5kW vfd which i can control with a potentiometer to start with then switch to PWM through a digital to analogue converter to supply a control voltage for the driver/controller.

    Next up would be to get the existing drives to run from the single phase supply (seperate circuit from the VFD).

    Eventually, i will be looking to upgrade the control system to something more up to date and will probably swap out the drivers for the axis. Hopefully I can keep the axis motors and, maybe, swap out the encoders when i update the drivers.

    I have managed to get the controller to power up and the screen is lighting up and it would appear that it is functioning as expected (in german though).

    My first problem is getting the drives to "jog" but i am having problems already here! I have power in and out of the primary transformer but it isn't making it to the next main transformer (T2 in the circuit schematic) I seem to have no power coming into the control switches on the side of the monitor and i am scratching my head to find the problem. Any of you had a problem like this? I have checked continuity on the main fuses and the next smaller fuses and they all seem fine but the lamps don't seem to light the main switches at all. Likewise there appears to be no power making it to the drivers for the axis at all. the test points are showing pretty much no voltage at all.

    Any help here would be greatly appreciated!

    Sorry for the long post but i hope it helps to see what i am aiming for before I really start ripping into this lovely old machine!

    Cheers,

    Mort

  2. #2
    Where is the (T2 in the circuit schematic)?
    ..Clive
    The more you know, The better you know, How little you know

  3. #3
    Hi Clive,

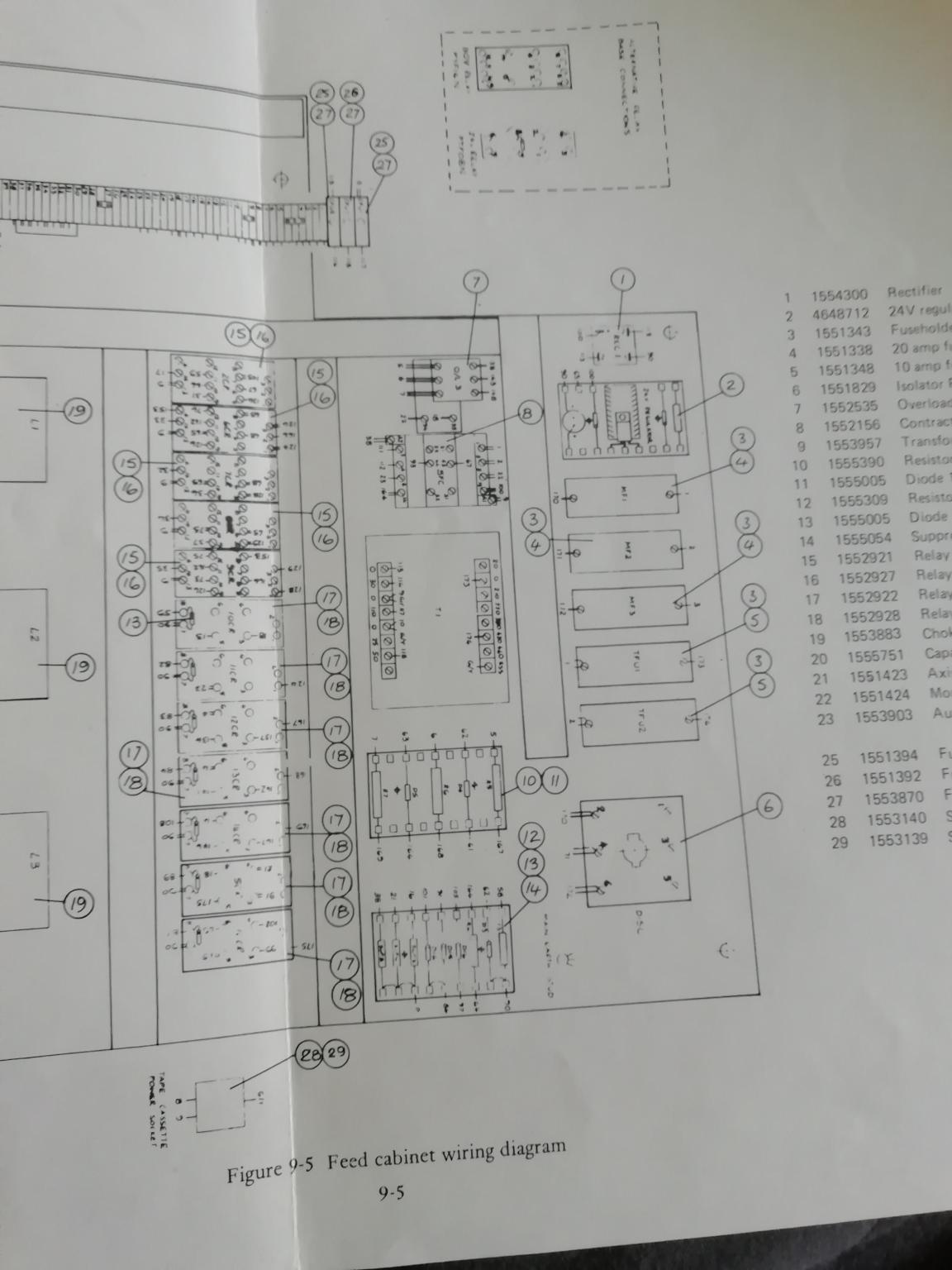
    On the feed cabinet wiring diagram (9-5, in the manual), it is right at the bottom. I have no power at all to the three chokes either. I may be reading the diagram wrong, so physically, it is the biggest transformer on the floor of the feed cabinet. Does that make sense?

    The only power i have is from the main transformer from the incomer...but the screen works. My initial thought was that the emergency stop or main switch may be fused somewhere that i can't see where!

    Thanks for the reply!

    Mort
    Last edited by Mortattoo; 10-07-2020 at 12:44 PM. Reason: typo...

  4. #4
    Ok well first off I think you'll find the drives and control won't like running from a VFD, they are not designed for this type of power and the VFD won't like you splitting circuits off it, again they are not designed to be used in this way. Really you need a Rotary phase converter which will let you run it all 3 phase.

    However often the Control and drive transformers are often single phase and just run from one leg of the main 3 phase transformer, only the spindle and coolant pumps tend to be 3 phase.
    Can you link to a Circuit diagram.?
    -use common sense, if you lack it, there is no software to help that.

    Email: [email protected]

    Web site: www.jazzcnc.co.uk

  5. #5
    If it's only capacitors that have failed they are cheap and easy to replace. Aluminium capacitors are a common point of failure for many power supplies. If the ends (larger capacitors usually have a cross indented on them) are even slightly bowed then this is a sure sign of failure. The worlds landfill sites are full of billions of dollars worth of failed electronics that could have been repaired by replacing a 50c aluminium capacitor with that tell-tale sign.
    An optimist says the glass is half full, a pessimist says the glass is half empty, an engineer says you're using the wrong sized glass.

  6. #6
    Hi Jazzcnc,

    Thanks for the advice. I was thinking that the main spindle motor can be disconnected from the incoming supply and run purely from the vfd. The rest is running from the two good phases from my current inverter, which I am told ran with this machine when the drives were tested (some time ago). This is going to be a big project for me, and i have very little experience of this type of machine.

    The manual is available here but it doesn't show the actual diagram i am looking at.

    I am trying to find a copy of the wiring diagram online but failing that i will try to get a couple of pictures on my phone and will upload them shortly.

    Thanks for the reply!

    Mort

  7. #7
    Hi again Kit,

    Oh yes, the capacitors are BLOWN! And i really mean that with the capitals! one is fully exploded and all the others are a horrible shape! Due to the single phase problem I think it may be easier to just go with the vfd for the main drive and salvage the old parts for later use/repair/sale.

    I have a fairly large stock (read as hoard) of older electronic devices that i have "saved" from the tip. Much to the dismay of my everloving girlfriend! Waste not, want not!

    Thanks for the suggestion,

    Mort

  8. #8
    Hi Guys,

    Just testing to see if i can get these to upload,

    Click image for larger version. 

Name:	IMG_20200710_125803.jpg 
Views:	713 
Size:	129.2 KB 
ID:	28557

    Click image for larger version. 

Name:	IMG_20200710_125816.jpg 
Views:	821 
Size:	131.3 KB 
ID:	28558

    Click image for larger version. 

Name:	IMG_20200710_125821.jpg 
Views:	705 
Size:	121.1 KB 
ID:	28559

    Well, that appears to have worked! So, this is what i have to work from, not ideal but better than nothing. I am looking for a proper service manual but haven't found anything yet. A circuit diagram would help i think!

    I am, it would appear, getting the correct voltages from the incomer to the first transformer and out from there. The next logical step is to trace the wires from there and see if i can "find" another circuit breaker of fuse that is blown. Failing that (not anywhere near that point yet) i will strip the whole cabinet and start again.

    Thanks for helping,

    Mort
    Last edited by Mortattoo; 10-07-2020 at 01:37 PM.

  9. #9
    Hi Guys,

    Quick update, Seems there is contactor that doesn't appear to be working. (contactor D1L 0052)

    I have been tracing wires all afternoon and trying to find where each one goes, trying to build up a picture of what goes where and how it is connected as an "decent" wiring diagram doesn't seem easy to find. I have found one but it doesn't give an awful lot of helpful info (at least to me).

    So, the next question is, how do i test the contactor and figure out where it is going wrong? The main "power enable" button on the controller isn't lighting up either but trying to find if that is a possible root of the problem or if it is a symptom of the failing contactor is confusing me.

    As time goes on i'm sure i will be able to understand, at least roughly, what the general setup on this is but working "blind" is far from ideal...


    Anyway, as usual, any advice or ideas would be gratefully recieved!

    Thanks,

    Mort

Thread Information

Users Browsing this Thread

There are currently 1 users browsing this thread. (0 members and 1 guests)

Similar Threads

  1. NEW MEMBER: cncest help getting started
    By johnnyrey in forum New Member Introductions
    Replies: 1
    Last Post: 02-07-2018, 07:40 AM
  2. Getting started and already confused
    By Palletlad in forum General Computing
    Replies: 10
    Last Post: 12-01-2018, 11:00 PM
  3. NEW MEMBER: New to CAD, looking for help in getting started cutting CF sheet
    By Devil_WAH in forum New Member Introductions
    Replies: 2
    Last Post: 23-02-2017, 07:30 PM
  4. Getting started BobCAD V27
    By peter gillespie in forum BobCAD-CAM
    Replies: 0
    Last Post: 11-06-2015, 12:00 PM
  5. NEW MEMBER: Started building!
    By bobgrant in forum New Member Introductions
    Replies: 1
    Last Post: 02-09-2010, 09:42 AM

Bookmarks

Posting Permissions

  • You may not post new threads
  • You may not post replies
  • You may not post attachments
  • You may not edit your posts
  •