. .
Page 2 of 3 FirstFirst 123 LastLast
  1. #11
    BDH's Avatar
    Lives in Mansfield, United Kingdom. Last Activity: 30-05-2021 Has been a member for 5-6 years. Has a total post count of 26. Received thanks 3 times, giving thanks to others 22 times.
    OK, thanks for that. I may have to get the aluminium parts made commercially. I'll work out some typical sizes of other components and see if the Denfords would be suitable for them.
    I'm very grateful for the advice from everyone, thank you.
    Brian

  2. #12
    What you will find unless you have a very large budget and equally large workshop space is that there is always a need for a larger machine because of a certain job
    I had this issue for some years and as such never bought a machine
    What I realised was that there was loads of jobs that it would have done and the odd one that would not fit on the machine
    I ended up with a need ti mill a 19mm hex on some parts that I was making from aluminium billet. I looked to get them milled locally and realised that whilst I could get it done readable cheaply I was always at the back of the queue
    So I put my hand in my wallet and bought the Starmill
    It’s served me well but I was offered a boxford vmc190 and bought it

    Paul

  3. The Following User Says Thank You to depronman For This Useful Post:


  4. #13
    m_c's Avatar
    Lives in East Lothian, United Kingdom. Current Activity: Viewing Forum Superstar, has done so much to help others, they deserve a medal. Has a total post count of 2,977. Received thanks 369 times, giving thanks to others 9 times.
    9" Y travel is quite a lot.

    Short of an industrial size machine, you're probably looking at some of the Chinese machines, and converting one yourself.
    ArcEuroTrade sell the Sieg SX3.5, which has 200mm Y travel.
    Emvio sell their EMV-25VBB which has 185mm of Y travel.
    There will also be other machines as well, if you search around the many other machine tool sellers.

    Downside of those machines for me, is they are both R8 tapers, so the only quick toolchange option is the Tormach style system.
    I personally prefer BT tapers.
    Avoiding the rubbish customer service from AluminiumWarehouse since July '13.

  5. The Following User Says Thank You to m_c For This Useful Post:


  6. #14
    Depending what you want to cut you may get away with a Denford Router, though it isn't the recommended route it would give you well over 9" x 9" you are looking for. Most of my work is engraving or fine detail aluminium where the biggest cut I need is a 0.2mm deep facing cut with an 8mm tool and the majority is roughing and finishing with 1, 2 and 4mm tools so I bought a Denford (it may be a Pro 2600 but I am not sure) and fitted a chinese 2.2kw water cooled spindle. Click image for larger version. 

Name:	moulds.jpg 
Views:	897 
Size:	219.9 KB 
ID:	28993

  7. The Following User Says Thank You to ngwagwa For This Useful Post:


  8. #15
    hi Just a quick question I am getting a starmill that has mach 3 on it , could you advise what tool probe do you use and how did you set this up with the machince. Mine has the original controller board and can see a spare connection for the tool probe, next to the xyz datums ?

    Thanks

  9. #16
    I made my own
    Basically a 6mm ball bearing silver soldered on to a piece of silver steel about 2” long
    The other end is threaded m4
    It screws into a piece of brass bar and the brass bar is bonded into a Tufnell sleeve (to electrically insulate it from the machine)
    I then machined up a ‘tool holder’ with a slightly tapered bore and three adjusting screws at 120deg spacing
    The Tufnell sleeve is a tight fit in the top end (small end) of the tapered bore the opposite end of the tapper is a piss fit in the Tufnell sleeve thus allowing the three adjustment screws to be used to centre up the ball of the probe
    On first use a dti is used to clock up the ball using the three screws similar to clocking up a part in a 4 jaw Chuck
    Thereafter unless the probe is knocked it runs true after repeated tool changes

    In use a crock clip is used to add power to the probe and when it touches the work it completes the circuit and trigger the controller
    Obviously only works on metal work
    On none conductive work then sticky aluminium tape is used connected to the machine with a crock clip

    The accuracy as proven very good I clamped a 30mm bore bearing on the bed and probed the bore adjusting the ball dia in the probe settings until the bore was measured as 30mm dia
    The ball is physically 6mm dia, in the software it is recorded as 0.05 different to 6mm

    It will repeat the 30mm bore measurement within +/- 0.01 over 20 tries which more than good enough for my use
    It will also probe in Z
    I have a tool height probe which is insulated from the machine so I need a opposite polarity crock clip for probe to tool height setting block
    I use the probe as my reference tool
    Then set up all other tools height as a delta to the probe and load these into the tool table using g43 on tool change to load the tool heigh delta
    This has proven very effective so far and saves having to touch off the tool every tool change but does need a number of R8 tool holders with the commonly used cutters pre loaded

    I must admit the boxford vmc190 that I now have is much easier on Tool changes as it as a manual drawbar and tool holders with pull studs - nice

    Cheers. Paul

  10. The Following User Says Thank You to depronman For This Useful Post:


  11. #17
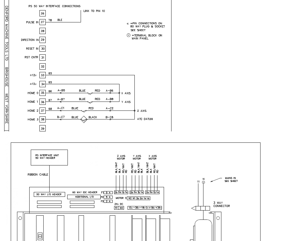
    Hi Thanks for the reply

    Where did you connect the sensor to as I can not see a spare connection on the board and or rs connector
    Click image for larger version. 

Name:	123.png 
Views:	1176 
Size:	63.7 KB 
ID:	29246

  12. #18
    My star mill is converted to mach3 so I connected to the BOB

  13. #19
    :) which BOB did you use :)

  14. #20
    One of the eBay specials from China. The one with the 3 relays on it


    Sent from my iPhone using Tapatalk

Page 2 of 3 FirstFirst 123 LastLast

Thread Information

Users Browsing this Thread

There are currently 1 users browsing this thread. (0 members and 1 guests)

Similar Threads

  1. Upgrading a Denford Triac Mill
    By Matabele in forum Denford Mills
    Replies: 20
    Last Post: 27-01-2022, 07:15 PM
  2. Denford or Boxford CNC mill - which is best?
    By GND in forum Milling Machines, Builds & Conversions
    Replies: 6
    Last Post: 07-10-2018, 07:37 PM
  3. Denford Triac Mill
    By DaveMann in forum Denford Mills
    Replies: 7
    Last Post: 12-01-2017, 10:43 AM
  4. FOR SALE: Emco mill 50 cnc mill like Denford Triac
    By gavztheouch in forum Items For Sale
    Replies: 0
    Last Post: 18-05-2014, 10:19 AM
  5. WANTED: Wanted Denford Triac CNC Mill
    By angusnoble in forum Items Wanted
    Replies: 1
    Last Post: 15-07-2012, 06:45 PM

Bookmarks

Posting Permissions

  • You may not post new threads
  • You may not post replies
  • You may not post attachments
  • You may not edit your posts
  •