Hybrid View
-
11-02-2021 #1
Just seemed to stop working for no visible reason. No DC to motor at all
..
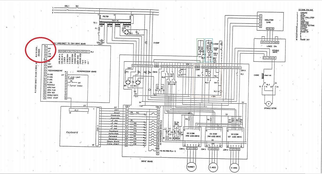
Ignore the red circle here, the culprit stuff is at the RHS of the circuit
Mains supplies into it seem sound at 245 v on my cheap multimeter.
Analog voltage input correct . But motor will just not start. (have tried a seperate input from rheostat which I have used to test before and still no go)
Have tried on both linux cnc , and also on Mach 3 (on seperate computers) and still no Joy
Transformer on iso board gives 2 x 120v outputs but nothing at all at outputs A,B,C, at the other end of the board, and of course all the electronics are totally beyond me.
Any ideas please anyone ??
-
12-02-2021 #2
not very helpful i know but i had mine die the other month and just ended up replacing it with a 60v switch mode and a cheap dc motor controller
i suspect if the lenze isn't popping the CB in the back of the machine its in better shape than mine was
-
13-02-2021 #3
Is this the type of controller you are using lahdiel
https://www.ebay.co.uk/itm/400W-Adju...Cclp%3A2334524
I have tried one in the interim and it seems to handle my TCL motor although I am not trying to flogg it .
Havent tried it yet with cutting loads .
-
15-02-2021 #4
Ran it today and at about 40 % with a pully gearing of about 1- 2.5 and it ran fine . Switched on by my Bob relay, and handled some pretty reasonable cutting loads without stalling or apparently overheating and its on board fuse did not appear to be challenged by half an hour of running.
So it will allow me to play while I decide on a more permanent option.
Looks pretty uncomplicated inside too . It has a pot too so wonder if PWM could be added instead .
Clearly it is not designed to handle the TCL Motor but wonse what it might take to build a beefed up version.
-
15-02-2021 #5
But then several hours later i tried again
Bang, tripped electricity , blew its own internal fuse , so clearly not quite up to the task.
Any better suggestions anyone ?
There are controllers for treadmills for not silly bucks .
https://www.ebay.co.uk/itm/1-PCS-Bra...53.m1438.l2649
Anyone got experience of them?
-
16-02-2021 #6
well, actually mines for the spindle of a 190vmc not a lathe, i'm using a dc powered pwm controller
-
16-02-2021 #7
-
16-02-2021 #8
Was looking at this
https://inverterdrive.com/group/DC-T...n-Isolated-1Q/
Guys at inverterdrive reckon it should handle the motor which I believe is 490 w , so will report back .
-
17-02-2021 #9
i built my own but you can find similar to what i'm using looking up 60v pwm controller, not sure what voltage yours will be but i've seen over 100 intended for those spindles on routers
-
12-02-2021 #10
I am hoping that I can save the lenze system..
Maybe just so I have more to spend on my next project
Thread Information
Users Browsing this Thread
There are currently 1 users browsing this thread. (0 members and 1 guests)
Similar Threads
-
Problem using cnc3018 with offline controller
By gikkalan in forum Chinese MachinesReplies: 4Last Post: 11-07-2021, 05:33 AM -
Very Sick Lenze 534 Controller
By Ricardoco in forum Motor Drivers & ControllersReplies: 32Last Post: 09-09-2020, 11:19 PM -
Boxford 260VMC with toolchanger Lenze spindle speed issue/query
By swood1 in forum Boxford Vertical MillsReplies: 0Last Post: 27-03-2018, 03:18 PM -
tb6560 controller problem
By Wayne B in forum Linear & Rotary MotionReplies: 3Last Post: 22-01-2018, 10:58 PM



Reply With Quote


Bookmarks