Thread: Warco Major CNC build log
Hybrid View
-
22-09-2009 #1
Did you use a parallel or similar between the bed and the DTI? It helps to smooth out bed irregularities.
My base was shimmed from new. The shims are brass coloured and less than 1 thou" (fitted near the bolts).
BTW Don't get too carried away - the head on these things can be flexed a few thou" with not too much trouble.
-
23-09-2009 #2
I measured it two ways to compensate for the lumpy bed, but seem to have cocked up :nope:
I reckon my -4 mils East measurement was actually a +4 mils, giving a +-6 mil East West tilt. I mean the tilt has to show even either side, doesn't it? :whistling:
6 mils over a 9cm radius translates to nigh on 0.3mm of packing at the column base, it's around 0.1 degrees out. I could see it was a bit bent when facing with larger endmills but didn't think it was that far out.
New plan. I have some 0.47mm brass sheet, I'll put a strip of that down the West side of the column base then shim the East side until it comes true(ish).
Not much of a plan, but hey, it's a plan. Now where did I put my piercing saw? :naughty:
-
25-09-2009 #3
How anal is too anal? :naughty:
It is now 0.005 degrees out east/west and 0.002 degrees out north/south. Trying to resist going for better but whaddya do.
Started on attempt #2 at a faster spindle because the bearings are unhappy if I try to run the main spindle up to credible small tool speeds.
The fast spindle is an ER11 chuck fitted to the honking plate and driven using a 1:3 timing belt off the main spindle.
Same axial bearings and Belleville washers that have served me well so far, but less than the 1/4 ton preload this time.
I've been looking at those splendid tool location doo-dads based on an electrical contact between tool and workpiece. As featured on this very site
To that end I have added Tufnol insulators to the shaft housing. No electrical contact between tool and machine body until it hits the workpiece.
-
26-09-2009 #4
Spindle housing now bolted together and impossible to assemble :nope:
Have to add a bit of internal clearance so the pulley can get past the belt :whistling:
Measured the resistance top to bottom, slightly worried when I found 8 million Ohms then realised I was in the circuit. Moved fingers and it went away
-
23-09-2009 #5Seems a long way out even for a Chinese tool. Have you checked the column and base for paint or rust intrusion? Is it bolted down onto something level and flat?6 mils over a 9cm radius translates to nigh on 0.3mm of packing at the column base, it's around 0.1 degrees out. I could see it was a bit bent when facing with larger endmills but didn't think it was that far out.
-
23-09-2009 #6
You think I might have done a Hubble? :naughty:
It's a cheap mill bolted down to a cheap stand, I don't think level and flat were ever really part of the equasion.
Don't know about paint and rust either, I've never separated it. I will certainly have a look see before I put the shims in. Engine hoist job, wasn't actually planning to remove any of the bolts beyond loose. Don't want to risk it getting away from me :whistling:
-
21-10-2009 #7
You've made a nice job of that Robin :)
I pre-loaded my roller nuts to about 400N per roller. There isn't any actual axial load on my lead screw; the pre load stops the roller moving axially within the nut. That seems OK for manual milling with my machine.Assuming 1Nm on the screw is enough to move the table under all circumstances, that's 1256N force on the nuts, call it 280 lbf because I don't think in Newtons
It's actually hard to tell exactly what pre-load you've set with a belleville you have to guess using a displacement and trust the manufacturer's table for the spring.
-
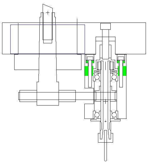
24-10-2009 #8
I know, but whaddya do? :whistling:
The extended ball nut housings are now cut, see pic. I plan to rip it all apart tomorrow and try for zero backlash by preloading the nuts
Ran the fast milling collet today at a tentative 4150rpm and looking good. I'm driving it with 44:13 pulleys off the main spindle.
-
25-10-2009 #9
ZERO BACKLASH ON X AND Y

Well, none that I can feel anyway :heehee:
First pic, horrible things done to Gary's ballnuts :naughty:
Pic 2, Belleville washers just about to get bolted onto nuts.
Pic 3, My extra speed ER11 collet chuck thingy
Last edited by Robin Hewitt; 25-10-2009 at 08:35 PM.
-
08-11-2009 #10
Added a set of Gary's 240 VAC driven stepper drivers and a splash guard.
Don't know how fast they go yet because my computer can't crank them up past top whack and refresh the screen at the same time.
I suddenly feel a need for belt guards on the steppers.
[ame="http://www.youtube.com/watch?v=bAoUW5bszRA&layer_token=c1adb91cff5d14e3"]YouTube- Noise[/ame]
Would you describe this as "quiet"? :heehee:Last edited by Robin Hewitt; 08-11-2009 at 08:20 PM. Reason: Added a movie
Thread Information
Users Browsing this Thread
There are currently 1 users browsing this thread. (0 members and 1 guests)
Similar Threads
-
Haighton Major
By BillTodd in forum Milling Machines, Builds & ConversionsReplies: 25Last Post: 14-05-2022, 02:17 PM -
WANTED: Conect Minor or Major CNC Milling Machine Wanted
By stevy123 in forum Items WantedReplies: 0Last Post: 24-08-2011, 10:35 AM -
CONVERSION: Buget Warco Major 5 axis conversion
By Tweaky in forum Conversion Build LogsReplies: 45Last Post: 07-10-2010, 04:26 PM -
Warco Super Major Mill 3 month old
By grimreaper in forum Milling Machines, Builds & ConversionsReplies: 6Last Post: 18-07-2010, 02:50 PM -
NEW MEMBER: Warco super major mill
By ste64 in forum New Member IntroductionsReplies: 5Last Post: 26-05-2010, 04:27 PM




Reply With Quote

Bookmarks