Thread: Accurate Strong Gantry
Hybrid View
-
25-11-2014 #1
Hello Everybody,
My target is to built a gantry for home use since I do office job and miss the miller work. (I have three sons so hope they follow the way)
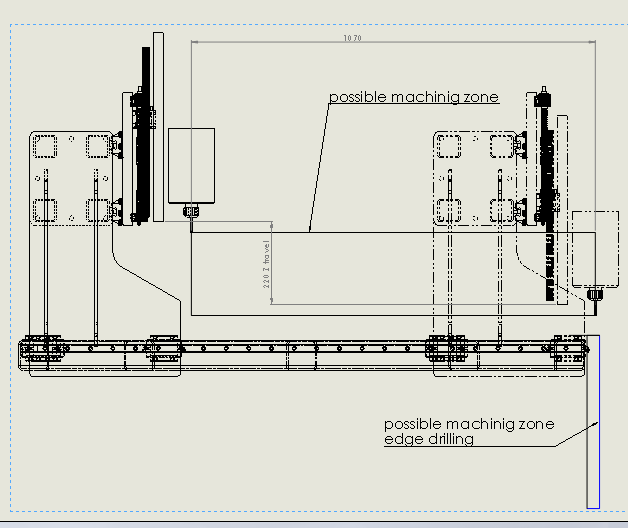
The travel is 1000 x 700 x 250 mm with 1000 N cutting force in Plastic, AL, with 0,05 mm total accuracy.
After studying the relevant threads some contradiction still need to be solved.
I.e. my friend who build some CNC machines(not like this) says you only need one ball screw in the middle.
There are many ways but the proved, reported solution is my solution.
I hope with your help and skill I can reach my goal so please correct me where I am wrong.
Base is not finished in the attached figures.
My queries:
- 1500 mm long rail position-side or top ?
- Is there any good carrige pattern to eliminate the double ball screw?
- At belt synchronizing version1 or version2 is the better? -my logic says the equal belt length in any drive direction give more accuracy .
Thank for your cooperation
BR
István
-
25-11-2014 #2
1. As far as I'm aware the bearings and rail do not care which way you have them but you need to think about how you will mount them so that they are level with each other across the frame, and that they are the same distance apart along the frame.
2. On a 700 wide machine I think you will need 2 ball screws.
3. As you say, the equal belt length method looks best.Last edited by EddyCurrent; 25-11-2014 at 11:45 PM.
Spelling mistakes are not intentional, I only seem to see them some time after I've posted
-
26-11-2014 #3
Thanks form the prompt answer,
[QUOTE
3. As you say, the equal belt length method looks best.[/QUOTE]
When I am saying equal length I am thinking of the extra synchronizing belt that has the same upper and lower length .
In the lower figure the drive is symmetrical so I am confused which of you mean the best
-
26-11-2014 #4
-
26-11-2014 #5
The price of the belt and pulleys will be same as the price for one driver more. So if you invest in one more motor you would have it properly made. Not that it would not work like that with one motor.
-
27-11-2014 #6
Thanks your comment, because this is one of the most critical issue here. You are aware of JazzCNC's intention namely two motor can cause big problem at synchronizing failure .
Just example for calculation with overestimated values:On a 1 m long belt 1 mm elongation on a perimeter of a 360 mm pulley gives 1 degree delay- derived to the 20/10 ball screw means 10 mm/360=0,027 mm deviation-looks not bad
But this is just theory again-reported data overrides the best theory.
I am planning to use 200-300 W servo here and master slave drive is quite expensive.
I saw you used two motors on your just made machine-I think steppers that gives torque protection but with potential step loss during operation
You know the target is 1000 N cutting force.
I need to see about this issue in the threads and your opinion is appreciated in the belt versus dual motor question.
Br
István
-
27-11-2014 #7
It is properly made and it actually works better than twin motors being more accurate and reliable if done correctly.
My machine use this setup and I'm just going to upgrade and replace worn components and seen has this means new custom length belts and new gantry setup etc then it would be perfect opertunity to change to twin motor setup if it was better.? . . I can tell you now the thought never entered my head and I wouldn't entertain swapping to twin motors unless I could use servo's or Hybrid servo system with encoder feedback.
This doesn't mean Twin motor setup is bad or worse because it isn't if setup and run well within the motors speed curve. What it does offer or mean is piece of mind that you never loose sync or have racking issues. No chance of damage to screws if one motor stalls at high feeds etc. Easy to setup and square gantry and never changes after belts have settled down.
Less electronics to deal with etc and while more mechanical items they are very low maintenance and easily available.
There are very few negatives but with some Big positives and if I had any negs it would be belts look messy with more initial work involved and need covering but other than that nothing really and when settled down after a few weeks running they are fit and forget other than yearly maintenance check.
-
26-11-2014 #8
Thread Information
Users Browsing this Thread
There are currently 1 users browsing this thread. (0 members and 1 guests)
Similar Threads
-
BUILD LOG: 8x4 router build. Steel base & Aluminium gantry gantry
By D-man in forum DIY Router Build LogsReplies: 57Last Post: 13-12-2019, 10:43 AM -
BUILD LOG: A sufficiently strong machine
By Jonathan in forum DIY Router Build LogsReplies: 42Last Post: 29-03-2014, 10:40 PM -
Accurate Tape Measure?
By Tenson in forum Tool & Tooling TechnologyReplies: 19Last Post: 26-05-2012, 04:41 PM -
NEW MEMBER: Strong 1212DS - any good?
By MrWiz73 in forum New Member IntroductionsReplies: 0Last Post: 29-03-2011, 11:13 AM -
Bit OT - accurate timing
By m_c in forum General ElectronicsReplies: 3Last Post: 18-05-2009, 01:16 PM



Reply With Quote


Bookmarks