2 Attachment(s)
Stick with Ali profile or venture into plate?
A good time to ask questions is when things appear to be heading towards the overly complex. So, as I know nothing about engineering, here I go..
I'm toying with a design that's a cross between Steve Hilton's beauty (http://www.mycncuk.com/forums/showth...u-lot-for-this....!) and the Heiz 1000. Work area about 1000 (+/-250 will do) by 600 with a Heiz style open base. Usual unrealistic scope of requirements, at one end PCBs would be nice the the other end ali plate of course.
As my current tool set is limited - b&q bench drill (I call it Rumble the 2nd, love it to bits), circular saw, Trend router - I decided to try the design using ali profile and avoid the need machine thick plate. Profile is great, for bolting to profile, but none of the basic cnc parts are designed on a 40x40 matrix :lol:. The further I go into the design the more little spacer/alignment plates, whatever you call them, I need.
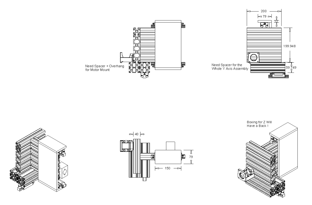
The breaking point came when I tried to figure out how to join the X and Y and Y motor: bolt the Y to a plate oversized to match the spacing of the X and make a sticky-out bit for the motor housing and another to support the base of the Y span. Combine this with spacers for the X gubbins and the fact the Z box thing needs to be plate to keep the overhang down and, well, that makes quite a lot of plate already, is it really worth continuing with the profile?
For your amusement:
Attachment 2820Attachment 2821
The profiles shown are stitched together from Bosh models but are supposed to represent items from the Valuframe range so while the outer features are correct the inner features are mince.
Back to pen and paper in a week when my Alibre demo runs out. I cut my 3d teeth with a SFX package called LightWave so I find Alibre quite nice, unfortunately the personal edition has a very limited set of import filters.. I'm debating :confused:
One easy question, just how long is a long 5mm allen key? Silly, but no where I go has the info.
Re: Stick with Ali profile or venture into plate?
I was toying with both plate and frame,totted it up and decide mild steelbox section was cheaper...well it would have been if I didn't have to buy the welder :lol:
On saying this though,if and when I get the hang of welding? I'll start using it to earn its keep.
On the whole if we have not the proper tools to cut and shape Ally then it becomes a bit of a downer to make.
Re: Stick with Ali profile or venture into plate?
40x40 matrix :lol:..... yep, its a pi**er.
iv done the same with the bosh rethrox cad files... im also buying from Valuframe (just down the road for me)
my ballscrews have just turned up so im on with fine tuning my drawing to fit them
im using the Valuframe 200x40 profile for my gantry sides.. i cant see plate performing anywhere near as well without some sort of buttress
the only real fear i have with the profile is trying to drill tidy holes for the Y screw, not looking forward to that one
sooooooooo..... in responce to your ali or plate dilema...... crack the base to gantry interface and profile looks to be the option for limited tools.... if you can handle the cost of heavy profile... im looking at a £500 ali bill, thats including a 20mm slab for the cutting bed, sounds a lot but should go together with an alen key :)
Re: Stick with Ali profile or venture into plate?
Minimum order £100, easy :) I just looked at the cost of the Y cross beam, say 40x200x700, sobering at about £70. Still, in this CNC game everything appears to work out at about £50 to £100 per part :confused:
Time to do the pros and cons calcs..
Cost:
Plate: 700x200x20, something like Steve's, £50
Profile: as above £70.
Weight:
Plate: 7.6kg
Profile: 4.8kg
N.B.
While not total mince, my inability to read all the instructions on botlanta web page resulted in deflection calcs that do not compare like for like, see post 15 for corrections.
Deflection due to 200N vertical force:
Plate: 0.02mm (http://www.botlanta.org/converters/d...c/bending.html, got to love imperial measurements, hope my conversions were correct)
Profile: less than 0.00mm for 40x160 (Bosh profile deflection calc)
Deflection due to 70N horizontal force:
Plate: 0.82mm
Profile: 0.01mm, again for Bosch 40x160
Disclaimer: the above values are from my calcs and sources I've found, they may be total pants!
In this case I think profile wins. k, back to the calcs...
Re: Stick with Ali profile or venture into plate?
Quote:
Originally Posted by
ecat
In this case I think profile wins. k, back to the calcs...
Just to throw another spanner in the works, I'm planning on using square tube for best stiffness / cost ratio...
http://www.aluminiumwarehouse.co.uk/...duct_info.html
Not as convenient as profile but it should be possible to join quite accurately with a bit of drilling and tapping and a lot cheaper.
Re: Stick with Ali profile or venture into plate?
Quote:
Deflection due to 70N horizontal force:
Plate: 0.82mm
Profile: 0.01mm, again for Bosch 40x160
nice one ecat... your calcs seem to good to be true... fingers crossed
the valuframe 200x40 is much more dense than the Bosch so should perform better
Quote:
square tube for best stiffness / cost ratio...
great price... would need some special fitting cosideratons to get the most out of its stiffness... internal spacers etc... making good stiff corners would take a bit of head scratching
Re: Stick with Ali profile or venture into plate?
Quote:
Not as convenient as profile but it should be possible to join quite accurately with a bit of drilling and tapping and a lot cheaper.
Not a bad price that FF,certainly cheaper than 5 sites I came across for ally.
To stiffen the corners and get a good bolting fix,see if you can get a length of solid block square to fit inside the ends about 1"1/2
Re: Stick with Ali profile or venture into plate?
Quote:
making good stiff corners would take a bit of head scratching
Piece of cake....solid block ally inserts,
Re: Stick with Ali profile or venture into plate?
you must be pretty shhhhlick on a B&Q bench drill George :wink:
Re: Stick with Ali profile or venture into plate?
Quote:
Originally Posted by
FatFreddie
Oo, nice link. I collect them :wink:
Quote:
Originally Posted by
blackburn mark
nice one ecat... your calcs seem to good to be true... fingers crossed
the valuframe 200x40 is much more dense than the Bosch so should perform better
Too good indeed... I should check them again. Meanwhile, A quick sanity check...
So I varies with the cube of thickness.
Looking at the horizontal force the plate is 20mm thick, the profile is 40mm thick. 40^3 / 20^3 = 8. Whoops, my calcs are 10 times that...
A-ha, the Beam calc web page is for beams supported at only 1 end, the profile figure is for a beam supported at both ends. Note to self, just because the link comes from a CNC site it doesn't mean the linked page is what you think it is!
There is a spread sheet around here somewhere, I'll get back to you...