the arrows are showing table movement, and as we all know it's the tool movement we look at.
Printable View
the arrows are showing table movement, and as we all know it's the tool movement we look at.
Can someone please explain this to me?
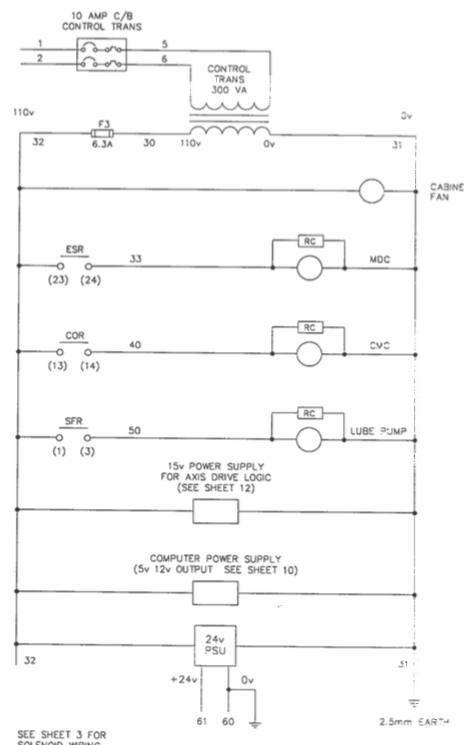
Look at the image below, this is the wiring diagram and shows that the 24 PSU (down the bottom) is fed from 110V, correct?
http://www.mycncuk.com/attachment.ph...id=15606&stc=1
Then here is a photo of the same 24V PSU, take a note of the 'jumper' on the bottom right. What is this set to take as AC input voltage, 220 or 110V?
http://www.mycncuk.com/attachment.ph...id=15607&stc=1
So, if there is a jumper, its 110V, if not 220V?
The way I read it is if you want to run the tx on 110V then leave the link in. leave the link out if you require it to be run on 240V.
Have you measured the o/p voltage? ..Clive
That's my understanding too. There is no jumper, therefore its set to 220V.
I wired it directly last night as I wanted the CS Labs controller to stay powered, even when the 110V drops out for whatever reason. So I connected it to 220V and a bit later, the PSU greeted me with some smoke. I should have measured the voltage prior to connecting up but there is no jumper, I checked this, which means 220V input is OK.
Clearly not .... Maybe both of us have the wrong way of thinking of this link / jumper. Just to confirm, that pic was taken before anything was changed and shows all wiring as it was. There is no jumper / bridge. I checked the unit again this morning before coming to work.
There must be a jumper in there somewhere. Ill triple check tonight. If you look at the manual too, it confirms what we both believe to be correct. I see no jumper ....
http://www.mycncuk.com/attachment.ph...id=15608&stc=1
It's hard to tell due to the clear plastic cover, but I'd say there's a little metal bar going up and over the plastic divider between the terminals.
Yes I was going to say put an ohm meter across the two terminals and see if it is in fact a dead short.
Yep, will do that. All hindsight now, need a new PSU.
Sorry wasn't ignoring you I went out last night.!
Ok well looking at the manual the Motors use Resolvers rather than Encoders and the Drives simulate encoder output so resolution will depend on how the drives are set.
The Ratio is simply if there are any pulleys or gearbox's involved. If not then ignore.
Goto Homing and Limits and Click reversed.
JazzCNC, what process do you use to PID tune the motors?
Do you use the 'auto tune' feature in the plugin config?
In all honesty I've very little experience with IP-A or Analog drives or motors with Resolvers which will make a difference to PID setup.
My motors are Brushed DC with Tacho's and Real Encoders which makes a difference to your setup. My drives PID was set up already for the Velocity/Current and the IP-A Autotune did a good Job with position so little to no tweaking required.
I would think that because your drives where already setup then you'll be in a similar position with Velocity/Current setup in the drive so using the Auto tune in IP-A would get you close. Then it's just a case of playing with IP-A PID settings to get nice stable smooth movement.
Thanks. Considering the mill was working before, the drives should be setup correctly. The 'output' from the drive is as if it was an encoder. The drive takes the resolver input and converts it to encoder type for the controller.
I have a question too around cabling whilst I try and find out what could cause any funny issues.
I am using Cat 5 cable for the encoder and ref signals. So, its shielded, its 8 core + the outer core.
The drawings I have show that the -10 to +10V run in their own shield. Currently I am sharing this common cable for - 10 to + 10 plus the encoder feedback. Is this a problem? I dont mind splitting them but dont want to buy cable I dont need.
Thanks
Yes agreed but you'll still need to tune the Controller for position so use the IP-A Autotune and tweak settings if motors are twitchy etc..
Yes I'd separate them.
Also make sure your Grounding is correct and all Shields going to Star Ground point.!
Neutral is not earth In the UK the earth is bonded to the neutral in most cases but not always.
The ground in your case is a central point where all the screens and ground are connected together in one place (star point) and that point in connected to the general earth connection. This is to try and stop ground loops. ..Clive
Ah, sorry, mistook 'star point' as the star of a 3 phase system which is commonly earthed. Thanks, understood what you explained.
Out of interest, my drawings show the encoder shield only being attached on side and from speaking to a colleague this morning, that seems common practice (not to earth both sides of a shield). Would that be correct based on the collective experience here?
Yes that would be correct. CliveQuote:
Out of interest, my drawings show the encoder shield only being attached on side and from speaking to a colleague this morning, that seems common practice (not to earth both sides of a shield). Would that be correct based on the collective experience here
Been away for the past week (my Golden wedding aniversary celebrations?), so sorry to be harping back to one of the non technical points. If your motor is marked as 230v 3 ph you can almost certainly run that coolant pump on single phase. Set the motor block connecters to Delta and either use a vfd or trick the motor to run in quasi 3 phase using a couple of caps. I have been running 3ph motors on 230v single phase for over 20 years and have never had any problems. It may be neccessary to use a separate switched cap for starting. If in any boubt, cap values etc. you can PM me. Your project is looking great. Well done. G.
You probably need a starting cap and a run cap. I actualy use a little timer that switches the start cap in for about one second, but the value of the caps you use is dependant on the motor power and if the motor is stating under load etc.. This system does not give a true 3ph, but a "quasi" 3ph, however for a coolant pump I am sure it that you will never know the difference. G.
What is the general consensus for wiring the Emergency Stop Relay. Keep this and its function (X Y Z extreme limits) or wire into the CS Labs directly and control from there?
Currently on activation it stops all drives, the spindle, the coolant pump and the ATC. It works and I am inclined to leave it in place as it is.
Well I don't agree with Killing power because Limit trip isn't an emergency situation it's a positional error so no need to Kill power just Halt movement. SO I would have limits tied to the Enable signal on drives and Inform the Controller of a Limit breach.
This way you don't damage expensive tooling when the spindle grinds to halt inside of material because power is Cut.! Machine is just halted from continuing and you can recovery safely by lifting tooling out of material then reversing off the Switches using tempory overide.
E-stop is an emergency situation to the operator and this is when you want power stopped but often positional errors ie: limits are not life threatening or dangerous to user only potential machine damage and the Limit's prevent this in most cases.
I did wounce upon time think "Kill every thing" but experience as taught me it's not needed where limits are concerened and it's more a pain in the arse, esp with short travels with fast accelerating machine and expensive at times with unnecessary tool damage.
One thing to be aware of when using this method, is you have to select caps that will provide reasonably matched voltages between the 3 legs when running. Achieving that with a small motor may prove to be a bit of a challenge, but you should benefit from the fact a coolant pump should have a reasonably steady load.
My main concern would be that the coolant pump motor is running near it's rated capacity, and when running from a static phase converter you risk burning out the motor if you try running it at high loads.
Thanks. I have a question about enabling '0V' for the drives.
Currently, to enable the drives, I need to provide 0V to a certain wire which allows a relay to activate (24V).
I have looked at the wiring diagrams and believe I understand how to wire the limits, E Stop, spindle activate etc.
What I am unsure of is how to enable a 0V grounding to enable the drives. I could reverse the wiring which means that it will switch the relay on, on providing 24V. There seems to be a specific way to do this in the manual as per below. Here, it seems to be for the same purpose but the 24V and 0V are reversed. Is this what I need?
There is also an option for 'low active', does this inverse the logic to satisfy the current need for 0V?
http://www.mycncuk.com/attachment.ph...id=15613&stc=1
On the topic of the 24V PSU, if you look carefully, there is a bridge there .... :-(
http://www.mycncuk.com/attachment.ph...id=15614&stc=1
On the topic of 'enabling', for solenoids etc, I assume it will be custom macros and commands to allow various outputs to be switched on and off as needed?
Chaz For the sake of clarity please be aware that the word grounding is not always the same as 0V. Grounding usually what is referred to as the star point ie earth. OV is the -ve from the power supply (but is not always at earth potential). ..Clive
Chaz the Cslabs Controller outputs are PNP logic so you can't control 0v only Load. So change the relay around and provide it with Positive.
The way the outputs work is you provide 24V and 0v to each bank of 4 outputs. Then each output switches the Load. The Load must share the 0v of the Output.
It's similair with Inputs as well except that each individual Input is provided with 24v & 0v but you can choose which to sense. So can use NPN or PNP logic if required.
The HV option could be used for enableing the drives but again it just uses an Output so will be PNP logic.
Low active just changes how it reacts or switches and doesn't inverse the voltage etc. IE: Active if Voltage goes High(24v) or Active if voltage goes Low(0v)
Or in case of outputs If OUTPUT High Turn it Low when active and vise versa.!
EDIT: If controlling relay with OUTPUT make sure the relay coil load isn't more than 250mA otherwise you'll damage the OUTPUT.
Depends what your controlling to whether it's Commands in a Macro or G-code commands. Both will control Outputs or inputs for turning things on or off.
So for instance to turn on Spindle and Coolant you'll use M3 and M8 which are G-code commands. M5 and M9 will turn them off.
For tool change you'll use M6 which then reads commands in a Script. This is where you use commands to turn on solenoids etc or read sensors etc and position the machine in correct place for tool change.!! . . . . This is where the funs starts.! . . Lol
The Cslabs have a very nice feature in that you can use Modbus to control the I/O directly in the controller and completely separate to Mach3 making it very flexible to what can be done with more features than what Mach3 allows and more reliable.! . . . Bit advanced maybe at this stage but you'll like it one day., ,Lol
Thanks JazzCNC.
I am trying to get the missing solenoids replaced but am stuck with 1 open question.
There are 4 x small pipes going up to the ATC for left / right / up / down and one single 6mm OD pipe for what I believe to be the drawbar.
When you look at the spindle however, there is a single pipe, I presume this is the same 6mm pipe to activate the drawbar?
http://www.mycncuk.com/attachment.ph...id=15616&stc=1
the 6mm pipe is for the drawbar
Perfect, thanks.
Getting pricing from http://www.jjairsystems.co.uk/ for the manifold, 5 solenoids (2 x ATC left / right), 2 x ATC down / up and drawbar).
you wont need 5, just three. The in/out can be done with one valve, same as the up/down.